Priced plans Waikato
The price is an indication of the build cost only and excludes land or site-related costs (such as landscaping, driveways and earthworks).
The price is an indication of the build cost only and excludes land or site-related costs (such as landscaping, driveways and earthworks).




Cute as a button and versatile in many ways, our two-bedroom Mynah plan is a great way to add a minor dwelling to your residential site because the design falls under the 65m2 size regulation.
View plan




The compact Tuke floorplan caters for a smaller site and smart design features create the feeling of space – perfect for young professionals and small families.
View plan




The two double-bedroom Sumner is a modern and compact home, ideal for first-home buyers or anyone looking to subdivide their property and maximise the value of their section.
View plan




This gorgeous two-bedroom Signature Homes home comes with street appeal and modern comforts. Thanks to its clever layout, there's a lot of space in this 111m2 square home.
View plan




Good things come in small packages, and the Tui does not disappoint. This plan features two spacious double bedrooms, an open-plan kitchen, living and dining area and a single internal access garage.
View plan




Looking for a cost-effective build? Look no further than the three-bedroom Ruru.
View plan




The Pukeko 124 brings together practical design and sunny living.
View plan




Designed to maximise space, the plan features three well-proportioned bedrooms, with the added benefit of an ensuite in the master bedroom.
View plan




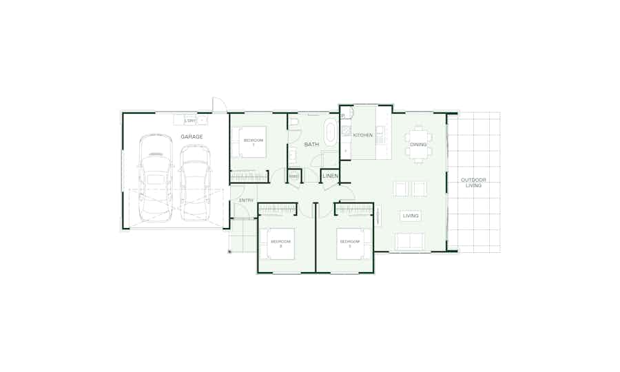
The three-bedroom Kingfisher plan offers low maintenance living and easy to navigate layout where the open plan living creates a lovely light-filled home that connects to the outdoors.
View plan




This gorgeous three-bedroom Signature Homes home comes with street appeal and modern comforts. Thanks to its clever layout, there's a lot of space in this 130m2 home.
View plan




Enjoy the effortless layout that this three-bedroom plan has to offer with its open-plan design, study nook and generous living space.
View plan




The three-bedroom Kingfisher plan offers a low maintenance living option without comprising must-haves in a quality home.
View plan




This three-bedroom home makes clever use of space, and offers everything you need.
View plan




Enjoy open-plan living with the Ohau, featuring three double bedrooms, two bathrooms including an ensuite, and internal access single garaging. This design offers a great layout for those seeking space and comfort. Bright and airy the main living area is complemented by all-day sun through expansive sliding doors, creating great indoor/outdoor flow.
View plan




The three-bedroom Rifleman plan makes great use of space at every turn. Open plan living helps to create more space throughout the home, allowing for bonus areas such as a study nook.
View plan




The three-bedroom Snipe plan makes great use of space at every turn. Open plan living helps to create more space throughout the home, allowing for bonus areas such as a study nook.
View plan




The four-bedroom Snipe plan makes great use of space at every turn. Open plan living helps to create more space throughout the home, allowing for bonus areas such as a study nook.
View plan




Our three-bedroom Taiko plan is a compact home with all the modern features. The cleverly designed floorplan allows for two double bedrooms, one single bedroom and expansive, light-filled living spaces.
View plan




Our three-bedroom Hummingbird plan is a compact home with all the modern features. The cleverly designed floorplan allows for generously sized bedrooms and living spaces.
View plan




The design features three double bedrooms, one bathroom and a open-plan living and dining area designed to optimise indoor/outdoor flow so you can enjoy all day sun.
View plan




Relax directly into the open-plan living area when you open the front door of the Whenuapai – a stunning, light-filled space that connects the gourmet kitchen, casual dining, peaceful living and integrated outdoor living area.
View plan




Our Wren three-bedroom plan offers a functional layout ideal for growing families with a separate living area, study nook, and large family bathroom.
View plan




Enjoy comfort and value with the Kai Iwi build, a design that is sure to impress. Clear definition between the social and sleeping spacesmakes living easy in the Kai Iwi
View plan




Maximise your land without compromising on the must-haves in a quality home. This compact 155m2 features an open plan living on the ground floor, which flows outdoors. The L-shaped kitchen creates more space, helping achieve the easy-open plan flow.
View plan




The Kiwi plan makes for an ideal family home with three generous bedrooms, open plan living and double car garaging. Daylight shines through to the modern kitchen thanks to ample windows.
View plan




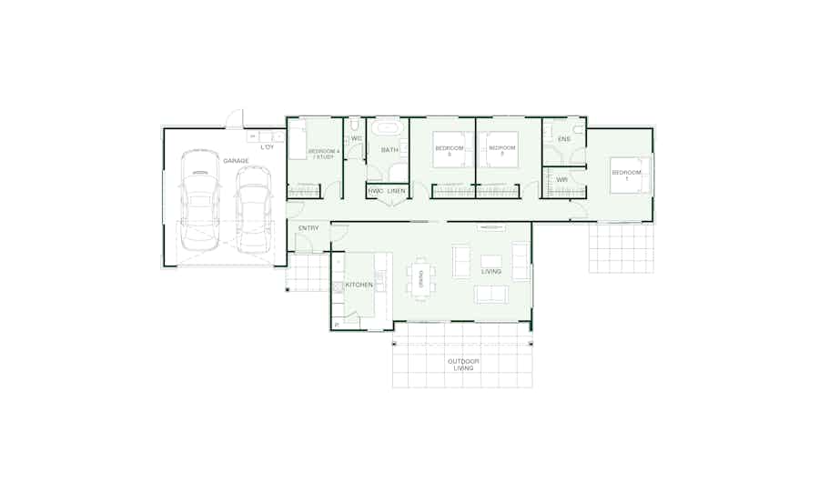
Our Fernbird plan offers an ideal family home or investment build. You will find a bedroom ideal for guests or teenagers at the entrance, with the remaining three bedrooms tucked away at the back of the home.
View plan




Our three-bedroom Tara-iti plan is a compact home that allows for generously proportioned bedrooms and living spaces.
View plan




Express your individuality with the three-bedroom Silvereye plan. The modern kitchen includes a large pantry great for storage, and the master bedroom is a standout feature of the home.
View plan




The Bellbird four-bedroom house plan features a spacious kitchen, living and dining space that are framed by ample windows, offering a seamless connection to the outdoors.
View plan




Our four-bedroom Kakapo plan offers a light-filled home with four generous bedrooms and an open plan kitchen and living space.
View plan




The Benmore design features modern must-haves paired with a practical layout. The bedroom wing features two double bedrooms, including the master that occupies one end of the home.
View plan




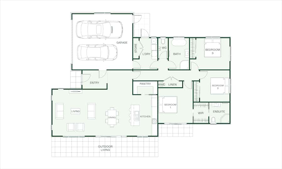
A three-bedroom home a cost-effective design without compromising on quality. Featuring three generous bedrooms, including a master with ensuite, there's plenty of room for all to enjoy.
View plan




As you walk into the Austral plan, you are invited by a light-filled home that flows effortlessly between spaces. Each of the three bedrooms are generous in size, ideal for a growing family.
View plan




The four-bedroom Kakariki plan fuses style and function. With an open plan layout that welcomes light into your home.
View plan




The wide frontage of the well designed Austral build creates a warm welcome and gives this single-level home charming street presence.
View plan




Be assured of comfortable living with the Wai build. The design showcases an effective use of space, enjoy three thoughtfully positioned double bedrooms plus a study, open-plan living area and double garage for storage
View plan




The surprisingly spacious four-bedroom Kereru plan will fit your family perfectly now and for years to come. The modern L-shaped kitchen is functional and stylish and provides a continuous flow to the open plan kitchen living and dining spaces. Sliding doors open out to the patio area for relaxation and entertainment.
View plan




Maximise your section with the four-bedroom Kotare plan. Spread over two-levels, this home features all the modern comforts. Downstairs you'll find open plan living with the bonus of a second living space. Upstairs are four generous bedrooms with a master ensuite and a large family bathroom.
View plan




This four-bedroom Weka plan offers flexibility and space with two living areas providing options for entertaining and relaxation.
View plan




Featuring four well positioned double bedrooms, family bathroom including an ensuite and a open-plan living and dining area designed to optimise indoor/outdoor flow.
View plan




The Kea plan features four generously sized bedrooms, with the master suite positioned away from the main living spaces. The master suite includes a large walk-in robe and ensuite.
View plan




The wide frontage of the four-bedroom Saddleback plan features an open-plan living and dining area that forms a central living space that brings everyone together, while an adjoining second living room offers another space to unwind.
View plan




Signature Homes Rosella house plan is a gorgeous four-bedroom home with a clever layout that maximises space.
View plan




The Torea plan offers an affordable build with all of the must-haves in a family home. Featuring four generous bedrooms, including a master with ensuite there's plenty of room for all to enjoy.
View plan




Designed with modern living in mind, the Hawea features considerate spaces for everyone to relax or entertain in. The centrally located kitchen forms the hub of this immaculate home, ideal for bringing family together.
View plan




With a footprint of just under 200m2, you'll be impressed by what is in offer in this plan—featuring four well-sized bedrooms 2.5 bathrooms; there's plenty of room for the entire family.
View plan




The Juniper features a spacious layout consisting of three double bedrooms, two bathrooms including an ensuite, a study nook and internal acess to a double garage.
View plan




At the centre of our four-bedroom Hihi plan is the large kitchen, with ample spaces for living and dining. The master suite is well-positioned away from the other bedrooms with its own bathroom.
View plan




A beautifully proportioned family home to suit your style of living. The Seacrest features thoughtfully designed spaces for everyone to relax or entertain in. The centralised modern kitchen forms the focal point separating the two open plan living areas.
View plan




The Falcon plan offers an affordable build with all of the must-haves in a family home. The expansive living areas provide ample spaces for the families to connect and relax, including a study nook. Featuring four generous bedrooms, including a master with ensuite there's plenty of room for all to enjoy.
View plan




A timeless home designed for easy living, the Endeavour offers exceptional value with its optimal use of space and innovative room configuration.
View plan




The four-bedroom Shearwater plan offers family living at its very best. This well-considered and easy to navigate floorplan features two living spaces, a generous modern kitchen and well-appointed bedrooms.
View plan




Split over two stories the Tern has four double bedrooms including a master suite which is tucked away on the ground floor. Expansive open-plan living and dining dominates the remainder of the ground floor along with the designer kitchen.
View plan




Simple, elegant and modern, the Manapouri was thoughtfully designed for family living with a stylish twist. The design features an inviting entryway that connects to a seamless flow of open- plan living space and a centralised modern kitchen that forms the hub of the home.
View plan




A sun-drenched entry-way combines the two separate wings of this Pavillion style home.
View plan




A standout feature of our four-bedroom Heron plan is the master bedroom which comes complete with a walk-in wardrobe, ensuite and ample bedroom space.
View plan




Featuring three double bedrooms and two bathrooms including an ensuite. The interior reflects considered positioning, with the bedroom wing separated from the main living area, creating a balance of social space and functional area.
View plan




A grand entrance and instant appeal is what you get with the Ellemere plan, the entry opens into a vast family and dining area.
View plan




The surprisingly spacious Miromiro plan will fit your family perfectly now and for years to come. The flexible floorplan is largely defined by two areas - bedrooms and living. The living wing of the home boasts two generous living spaces and dining area.
View plan




Sandy Bay's flexible design helps you organise your home to best suit your family. There is a large, second living room at the entrance of the home which could easily double as a playroom or home theatre.
View plan




The perfect entertainer, the Solomon offers spacious single floor living. Fusing style and functionality, the Solomon helps you host any event. The entryway welcomes your friends and family, inviting them into the expansive open-plan living area.
View plan




This spacious family home offers four bedrooms including a master sanctuary complete with ensuite and walk-in wardrobe.
View plan




The surprisingly spacious Pupuke will fit your family perfectly now, and for years to come. The flexible floorplan banishes clutter with plenty of storage space.
View plan




Focused on comfort and character the Futuna is designed to suit a range of different lifestyles and lifestages.
View plan




The Explorer design features four innovatively placed bedrooms, and an integrated outdoor living area, perfect for entertaining.
View plan




Livable and relaxed, the Traveller meets all of life's events with ease. It's flexible design and effective use of space helps organise your home to best suit your lifestyle. The bedroom zone consisting of three bedrooms including a master, is separated from the main living space creating a natural flow of movement.
View plan




As soon as you step foot in the Tomarata you are greeted by a light and bright home. The entryway opens to a view of the stunning outdoor living area which is ocooned by all rooms in the house. The Tomarata offers two distinct zones with the open-plan social areas, master retreat and study to the right of the entrance.
View plan




A modern three bedroom custom build, featuring a striking exterior and an inviting interior.
View plan




The Caroline four-bedroom house plan offers functional spaces for growing families, making it a popular house design throughout NZ.
View plan




The H-shaped Medlands is an ideal design for young families. Once through the front door, a right turn takes you into the hallway, which leads to two bedrooms, a family bathroom, master bedroom with ensuite and walk-in wardrobe and a second lounge. Turn left and the open-plan social areas unfold.
View plan




The Tangaroa house plan provides plenty of space for growing families. Featuring five bedrooms and two living areas at either end of the home.
View plan




The Maxwell plan is an eye-catching lifestyle build with indoor-outdoor flow.
View plan




Contemporary floorplans favour flexible open-plan living rather than separate rooms – but Moke offers both
View plan




The Meadows house plan is a stunning four-bedroom home that is both functional and stylish.
View plan




The four-bedroom Waikato plan feels right at home in NZ's countryside, with its rustic charm and barn-like design.
View plan




The Pohutukawa is five-bedroom house plan by Signature Homes. Featuring an open plan kitchen, dining and living areas with alcove.
View plan




The Adventure is a spacious floorplan that will suit all your family’s needs. Inside the porch entry is a master retreat and second bedroom that could be configured as a guest suite, along with a formal living room. There's a cloak cupboard and direct access down the expansive hallway.
View plan




Signature Homes Robinson plan is a modern take on the Farmhouse. The plan features four well-appointed bedrooms and open-plan spaces.
View plan