


















The Whenuapai: A three-bedroom house plan by Signature Homes
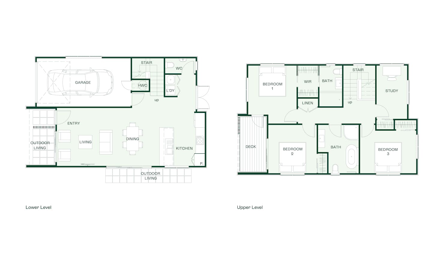
Relax directly into the open-plan living area when you open the front door of the Whenuapai – a stunning, light-filled space that connects the gourmet kitchen, casual dining, peaceful living and integrated outdoor living area. Generous storage, including walk-in laundry, and a separate WC ensure the downstairs social areas of the home are beautiful and functional.
Upstairs, a central landing invites you into the main bathroom, large study and three double bedrooms including the front-facing master suite, which boasts a walk-in wardrobe and a luxuriously spacious ensuite with oversized shower.
Build this home with the added peace of mind of Signature Homes fixed price guarantee.
Signature Plus is part of Signature Homes' collection of pre-designed house plans. This series presents top-tier specifications for both the home's exterior and interior. Each design boasts well-considered layouts, maximising space and harnessing natural light.
Customise this plan to suit your budget and lifestyle. Book your no-obligation new home workshop today.
Our Signature Service Promise
We believe building your home should feel exciting, not stressful. That’s why when you choose Signature Homes, you’ll get:
- The best building guarantees in NZ — so you can build with total peace of mind.
- The best service in the business — we’re with you every step of the way.
- Transparent, accurate pricing — no surprises, just honesty.
- Over 40 years of experience — helping Kiwis create homes they love.
- Accurate build timelines — so you always know what’s ahead.
Whenuapai
House size 151㎡
- Beds3
- Bathrooms2.5
- Receptions1
- studies1
- Parking1
Enquire about this plan
Whenuapai Floorplan





