


















The Mairangi: A four-bedroom house plan by Signature Homes
The Mairangi has a commanding exterior and comprises two gable volumes - one long, one short - laid side by side.
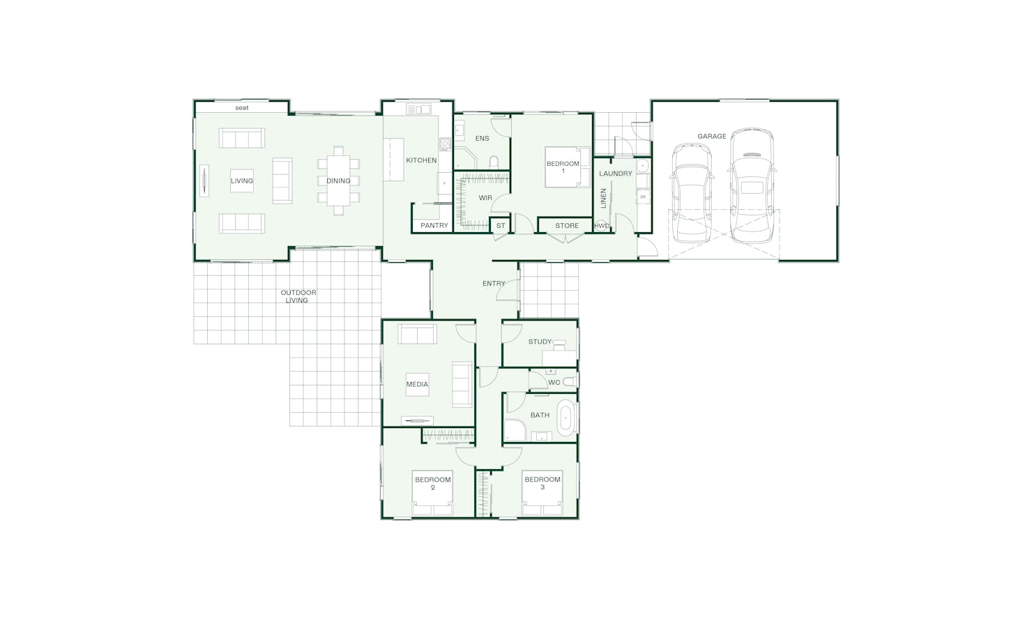
The smaller volume houses two double-bedrooms, an office and media room aswell as a family bathroom with bathtub and separate toilet.
The larger volume contains the spacious open-plan kitchen, living and dining area, master retreat with generous ensuite and walk-in wardrobe, and the laundry and double garage.
The spacious pavilion-style home creates a naturally light and open interior with a strong connection to the outdoors. Sliding doors provide lovely flow to two generous decks from the open-plan living space. A high gabled ceiling sends the sense of space through the roof in this entertainer's domain.
Build this home with the added peace of mind of Signature Homes fixed price guarantee.
Signature Plus is part of Signature Homes' collection of pre-designed house plans. This series presents top-tier specifications for both the home's exterior and interior. Each design boasts well-considered layouts, maximising space and harnessing natural light.
Customise this plan to suit your budget and lifestyle. Book your no-obligation new home workshop today.
Our Signature Service Promise
We believe building your home should feel exciting, not stressful. That’s why when you choose Signature Homes, you’ll get:
- The best building guarantees in NZ — so you can build with total peace of mind.
- The best service in the business — we’re with you every step of the way.
- Transparent, accurate pricing — no surprises, just honesty.
- Over 40 years of experience — helping Kiwis create homes they love.
- Accurate build timelines — so you always know what’s ahead.
Mairangi
House size 271㎡
- Beds3
- Bathrooms2
- Receptions2
- studies1
- Parking2
Enquire about this plan
Mairangi Floorplan





