






















The Seacrest: A three-bedroom house plan by Signature Homes
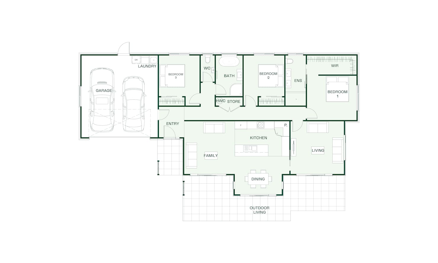
A beautifully proportioned family home to suit your style of living. The Seacrest features thoughtfully designed spaces for everyone to relax or entertain in. The centralised modern kitchen forms the focal point separating the two open plan living areas.
The master bedroom takes pride at one end of the wing, while the other two double bedrooms enjoy a sense of privacy divided by the two bathrooms. The layout offers a perfect balance of social spaces, functional areas and quiet retreats.
Build this home with the added peace of mind of Signature Homes fixed price guarantee.
Signature Plus is part of Signature Homes' collection of pre-designed house plans. This series presents top-tier specifications for both the home's exterior and interior. Each design boasts well-considered layouts, maximising space and harnessing natural light.
Customise this plan to suit your budget and lifestyle. Book your no-obligation new home workshop today.
Our Signature Service Promise
We believe building your home should feel exciting, not stressful. That’s why when you choose Signature Homes, you’ll get:
- The best building guarantees in NZ — so you can build with total peace of mind.
- The best service in the business — we’re with you every step of the way.
- Transparent, accurate pricing — no surprises, just honesty.
- Over 40 years of experience — helping Kiwis create homes they love.
- Accurate build timelines — so you always know what’s ahead.
Seacrest
House size 190㎡
- Beds3
- Bathrooms2
- Receptions2
- Parking2
Enquire about this plan
Seacrest Floorplan





