














The Korimako: a three-bedroom house plan by Signature Homes
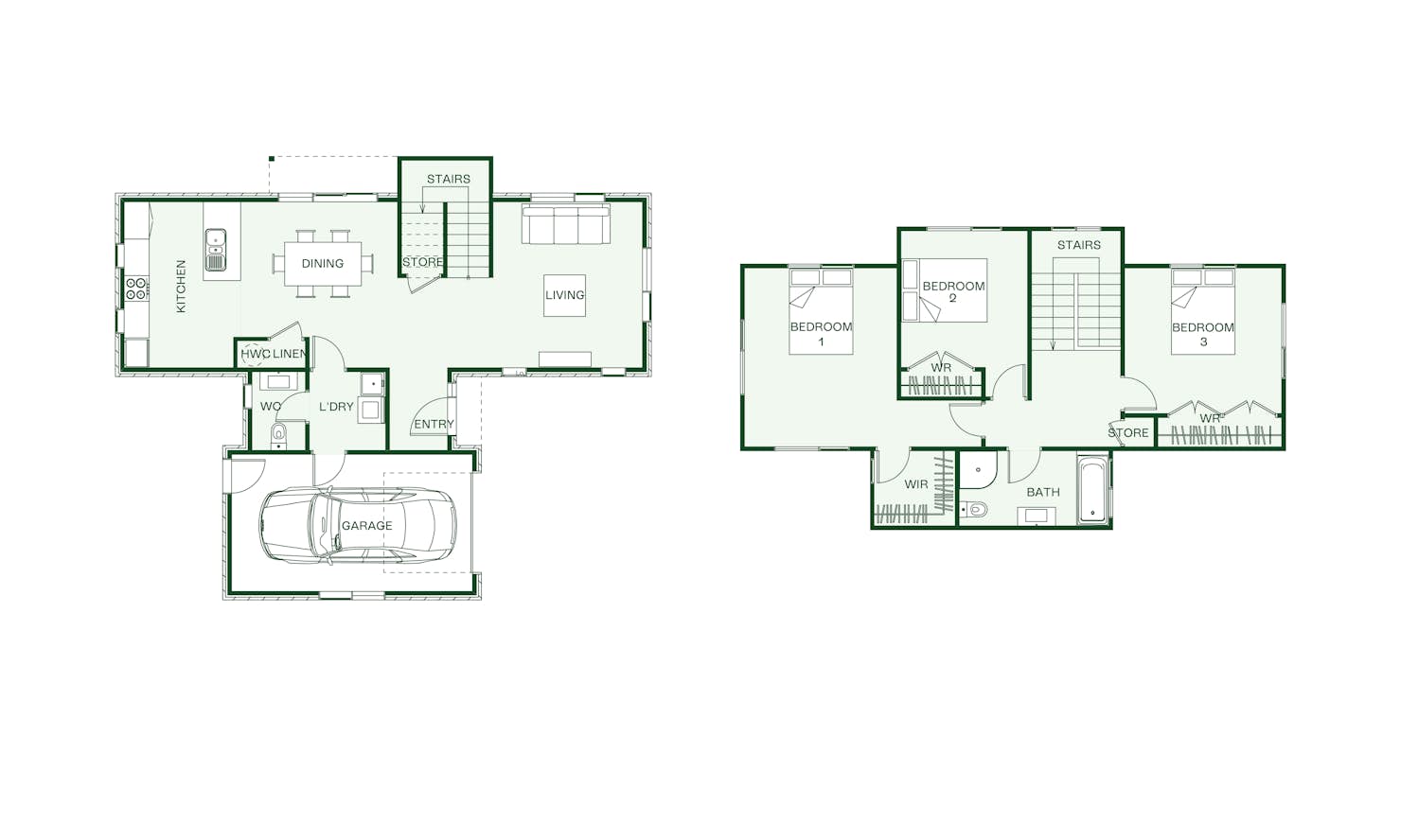
Maximise your section with our three-bedroom, two-storey Korimako plan. Downstairs you'll find open plan living and three generous bedrooms upstairs, including a family sized bathroom.
Our Signature Series offers a variety of pre-designed house plans that embody the quintessential Kiwi lifestyle with their open plan layouts and practical designs. These homes are crafted to provide exceptional value without compromising on quality.
Customise this plan to suit your budget and lifestyle. Book your no-obligation new home workshop today.
Our Signature Service Promise
We believe building your home should feel exciting, not stressful. That’s why when you choose Signature Homes, you’ll get:
- The best building guarantees in NZ — so you can build with total peace of mind.
- The best service in the business — we’re with you every step of the way.
- Transparent, accurate pricing — no surprises, just honesty.
- Over 40 years of experience — helping Kiwis create homes they love.
- Accurate build timelines — so you always know what’s ahead.
Read more
Korimako
House size 163㎡
- Beds3
- Bathrooms1.5
- Receptions1
- Parking1
Enquire about this plan
Korimako Floorplan





