














The Wakefield: A three-bedroom house plan by Signature Homes
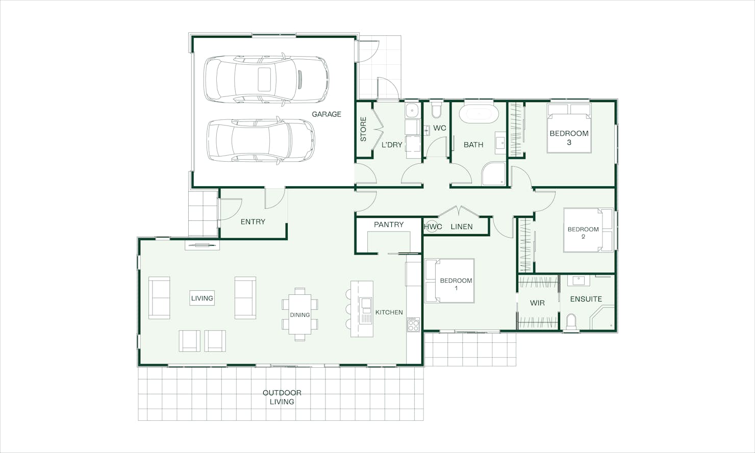
A natural flow of movement cocoons the Wakefield's peaceful bedroom zone from its bright, sociable living areas. All three double bedrooms are stacked at the rear of the home. The master retreat opens onto it's own private outdoor space and has a bright ensuite which is accessed through a walk-in wardrobe.
When it’s time to get sociable, Wakefield unfurls to an open-plan living and dining space that runs along one side of the home, all opening whole side of the onto an outdoor living area. The kitchen will inspire with its large island bench and walk-in pantry.
Build this home with the added peace of mind of Signature Homes fixed price guarantee.
Signature Plus is part of Signature Homes' collection of pre-designed house plans. This series presents top-tier specifications for both the home's exterior and interior. Each design boasts well-considered layouts, maximising space and harnessing natural light.
Customise this plan to suit your budget and lifestyle. Book your no-obligation new home workshop today.
Our Signature Service Promise
We believe building your home should feel exciting, not stressful. That’s why when you choose Signature Homes, you’ll get:
- The best building guarantees in NZ — so you can build with total peace of mind.
- The best service in the business — we’re with you every step of the way.
- Transparent, accurate pricing — no surprises, just honesty.
- Over 40 years of experience — helping Kiwis create homes they love.
- Accurate build timelines — so you always know what’s ahead.
Wakefield
House size 201㎡
- Beds3
- Bathrooms2
- Receptions1
- Parking2
Enquire about this plan
Wakefield Floorplan





