














The Wakatipu: A three-bedroom house plan by Signature Homes
A practical layout with modern must haves, the Wakatipu is sure to impress.
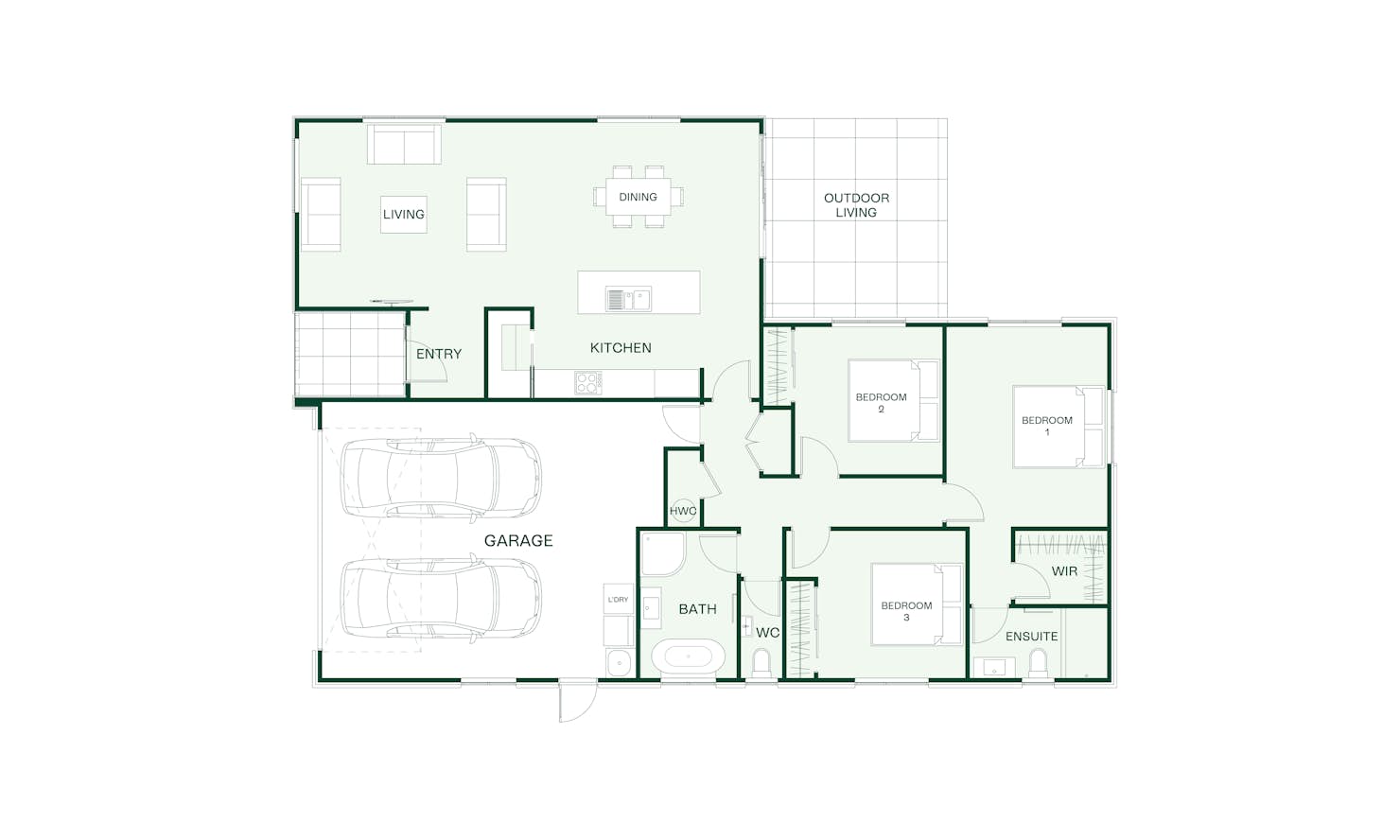
Enjoy your own personal retreat at the end of the day withthe master occupying the whole end of the home.
The plan also features two more double bedrooms, two bathrooms including an ensuite and a spacious open-plan living area accessed direct from the entryway.
Build this home with the added peace of mind of Signature Homes fixed price guarantee.
Signature Plus is part of Signature Homes' collection of pre-designed house plans. This series presents top-tier specifications for both the home's exterior and interior. Each design boasts well-considered layouts, maximising space and harnessing natural light.
Customise this plan to suit your budget and lifestyle. Book your no-obligation new home workshop today.
Our Signature Service Promise
We believe building your home should feel exciting, not stressful. That’s why when you choose Signature Homes, you’ll get:
- The best building guarantees in NZ — so you can build with total peace of mind.
- The best service in the business — we’re with you every step of the way.
- Transparent, accurate pricing — no surprises, just honesty.
- Over 40 years of experience — helping Kiwis create homes they love.
- Accurate build timelines — so you always know what’s ahead.
Wakatipu
House size 180㎡
- Beds3
- Bathrooms2
- Receptions1
- Parking2
Enquire about this plan
Wakatipu Floorplan





