
























The Benmore: A two-bedroom house plan by Signature Homes
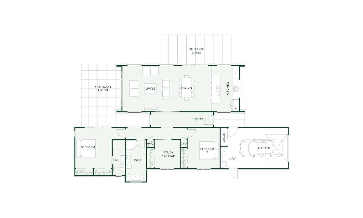
The Benmore design features modern must-haves paired with a practical layout. The bedroom wing features two double bedrooms, including the master that occupies one end of the home as well as an office that can be used as a third bedroom, depending on your lifestyle.
The designer kitchen carries through to the dining and living areas creating a seamless entertaining space, while the integrated outdoor living area cleverly extends the main living space, complemented by all day sun through large sliding doors.
Build this home with the added peace of mind of Signature Homes fixed price guarantee.
Signature Plus is part of Signature Homes' collection of pre-designed house plans. This series presents top-tier specifications for both the home's exterior and interior. Each design boasts well-considered layouts, maximising space and harnessing natural light.
Customise this plan to suit your budget and lifestyle. Book your no-obligation new home workshop today.
Our Signature Service Promise
We believe building your home should feel exciting, not stressful. That’s why when you choose Signature Homes, you’ll get:
- The best building guarantees in NZ — so you can build with total peace of mind.
- The best service in the business — we’re with you every step of the way.
- Transparent, accurate pricing — no surprises, just honesty.
- Over 40 years of experience — helping Kiwis create homes they love.
- Accurate build timelines — so you always know what’s ahead.
Benmore
House size 163㎡
- Beds2
- Bathrooms2
- Receptions1
- studies1
- Parking1
Enquire about this plan
Benmore Floorplan





