





















Premium in Prebbleton
From $796,000
Prebbleton
Section size 432㎡
House size 140㎡
- Beds4
- Bathrooms3
- Receptions1
- Parking1
or email debbieryan@signature.co.nz
Visit Signature Homes Christchurch South
Enquire about this Package
Premium in Prebbleton
Prebbleton
Your Signature package, made easy
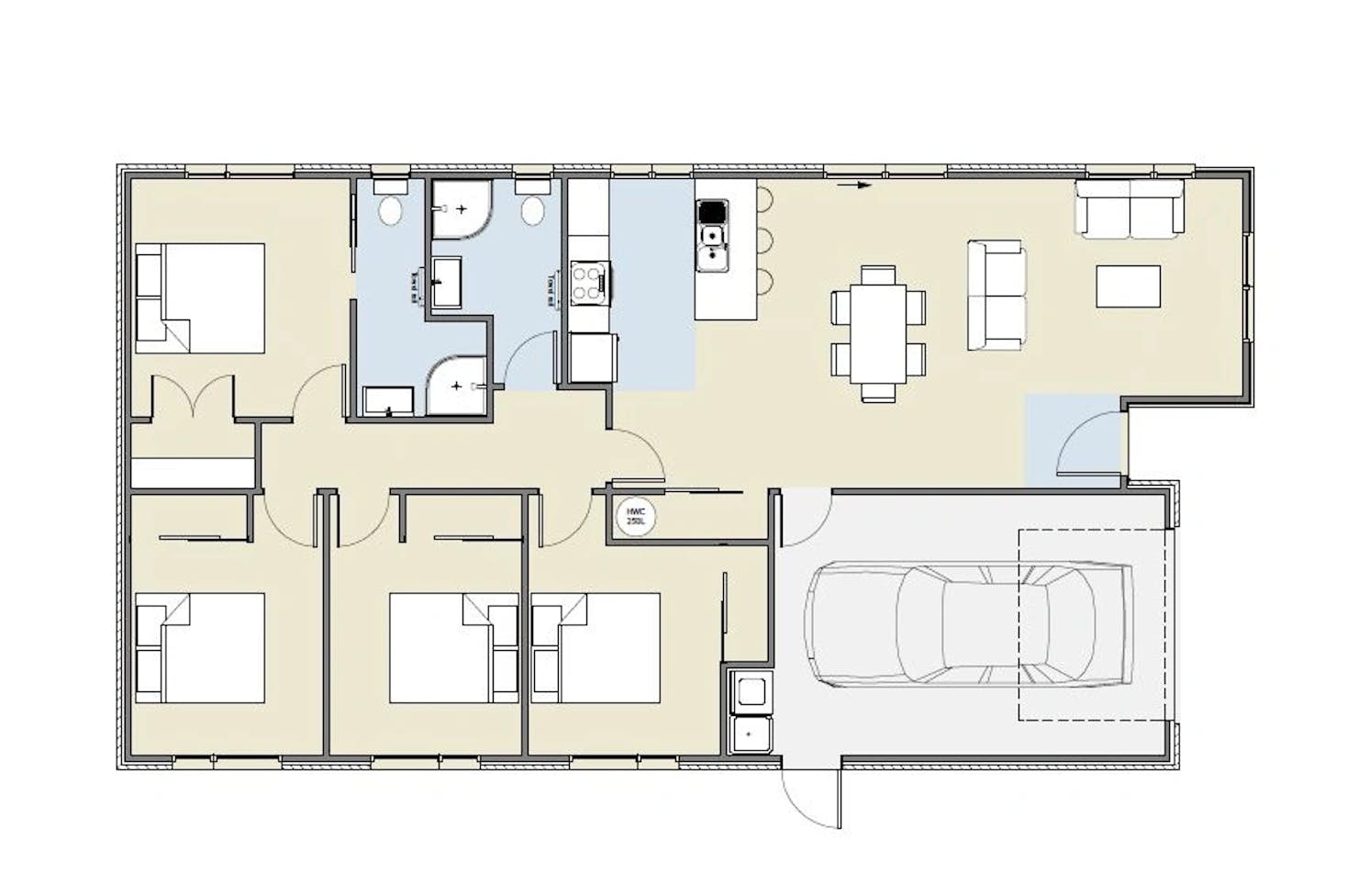
Your chance to secure a 140m2 four-bedroom, two-bathroom home - A great family home or investment opportunity in the fantastic Trices Road Subdivision in Prebbleton.
There's so much on offer with our cleverly designed four-bedroom Snipe plan. Designed to maximise space, the plan features four well-proportioned bedrooms, with the added benefit of an ensuite in the master bedroom. An open plan kitchen, living and dining space creates an inviting atmosphere
Signature features:
- Boutique subdivision on the edge of Prebbleton
- Established and thriving community connection
- Excellent schools nearby
- Spacious master bedroom
- Open plan kitchen, living, dining
Trices Road is a boutique subdivision located on the edge of the Prebbleton Village, a mere 15 minutes from Christchurch CBD. Prebbleton offers a peaceful lifestyle within easy reach of the city.
Convenient amenities:
Prebbleton Village is thriving with various cafes, eateries, health & fitness shops, a beauty salon, and a laundromat. Fresh Choice supermarket is conveniently located nearby, providing quality groceries and essentials. All your local amenities are within a short distance from your doorstep.
Activities:
- Join the Prebbleton Pickleball club for a new hobby
- Enjoy Kakaha Park with its cycle tracks, sports field, and dog park featuring an agility course
- Education options include Prebbleton School for years 1-8 and a local Preschool/Kindergarten
Prebbleton has something for everyone! Don't miss the chance to make this your next home.
Our Signature Service Promise:
We believe building your home should feel exciting, not stressful. That’s why when you choose Signature Homes, you’ll get:
- The best building guarantees in NZ - so you can build with total peace of mind.
- The best service in the business - we’re with you every step of the way.
- Fixed pricing - no surprises, just honesty.
- Over 40 years of experience - helping Kiwis create homes they love.
- Accurate build timelines - so you always know what’s ahead.
Package includes
- Signature Homes market-leading Building Guarantees
- Your choice of internal and external colours
- Fixed Price Guarantee
Floorplans: Premium in Prebbleton




Location
Prebbleton



