



























Embrace the Prebbleton Dream
From $849,000
Lot 14 Trices Road Development
Section size 450㎡
House size 150㎡
- Beds4
- Bathrooms2
- Receptions1
- Parking1
or email LiezelSevalle@signature.co.nz
Visit Signature Homes Christchurch South
Enquire about this Package
Embrace the Prebbleton Dream
Lot 14 Trices Road Development
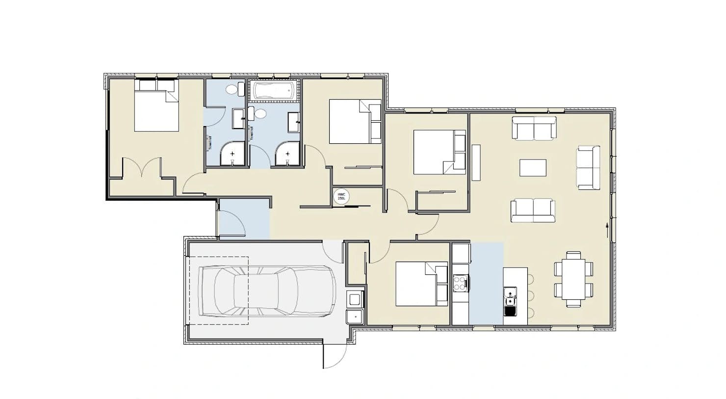
Your chance to secure a 150m2 four-bedroom, two-bathroom home - A great first home in the fantastic Trices Road Subdivision in Prebbleton.
Our Faringdon Showhome plan features spacious kitchen, living and dining spaces that are framed by ample windows, and a seamless connection to the outdoors.
Featuring four thoughtfully located bedrooms, away from the main living area, creating the perfect balance of private and social spaces.
Trices Road is a boutique subdivision located on the edge of the Prebbleton Village, a mere 15 minutes from Christchurch CBD. Prebbleton offers a peaceful lifestyle within easy reach of the city.
Prebbleton Village is thriving with various cafes, eateries, health & fitness shops, a beauty salon, and a laundromat. Fresh Choice supermarket is conveniently located nearby, providing quality groceries and essentials. All your local amenities are within a short distance from your doorstep. Activities and facilities in the area include:
- Join the Prebbleton Pickleball club for a new hobby
- Enjoy Kakaha Park with its cycle tracks, sports field, and dog park featuring an agility course
- Education options include Prebbleton School for years 1-8 and a local Preschool/Kindergarten
Prebbleton has something for everyone! Don't miss the chance to make this your next home.
Features include:
- 150m² house size
- 450m² section
- Four bedrooms
- Spacious master bedroom with walk-in wardrobe and ensuite
- Open plan kitchen, living & dining
- Two bathrooms (including ensuite)
- Single garage with internal access
Titles expected May-2025, get in touch to start planning your move to Prebbleton!
Package includes
- Signature Homes market-leading Building Guarantees
- Your choice of internal and external colours
- Fixed Price Guarantee
Floorplans: Embrace the Prebbleton Dream




Location
Lot 14 Trices Road Development


