











































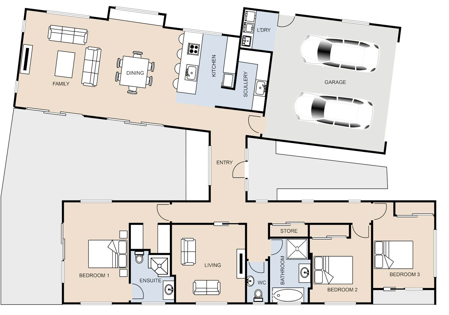
Our Paerata Rise showhome offers a perfect blend of modern design and comfort. Featuring three cozy bedrooms, a scullery, and an open-plan kitchen, the home is both functional and stylish. The kitchen flows into two inviting living areas, ideal for family living.
Bold dark vertical panelling runs from the pavilion-style exterior into the interior, highlighted by a striking high-arched feature wall in the lounge. A serene Cosentino Dekton benchtop in Argentium complements the design, creating a calming atmosphere. The home also includes a spacious two-car garage for added convenience.
32 Te Rātā Boulevard, Paerata Rise
Open daily from 11am-4pm.
Signature Homes Papakura & FranklinNew home enquiries:
0800 828 822
Other enquiries:
09 238 9590
Floorplans



