



















Signature Homes Fernbrook Showhome in New Plymouth
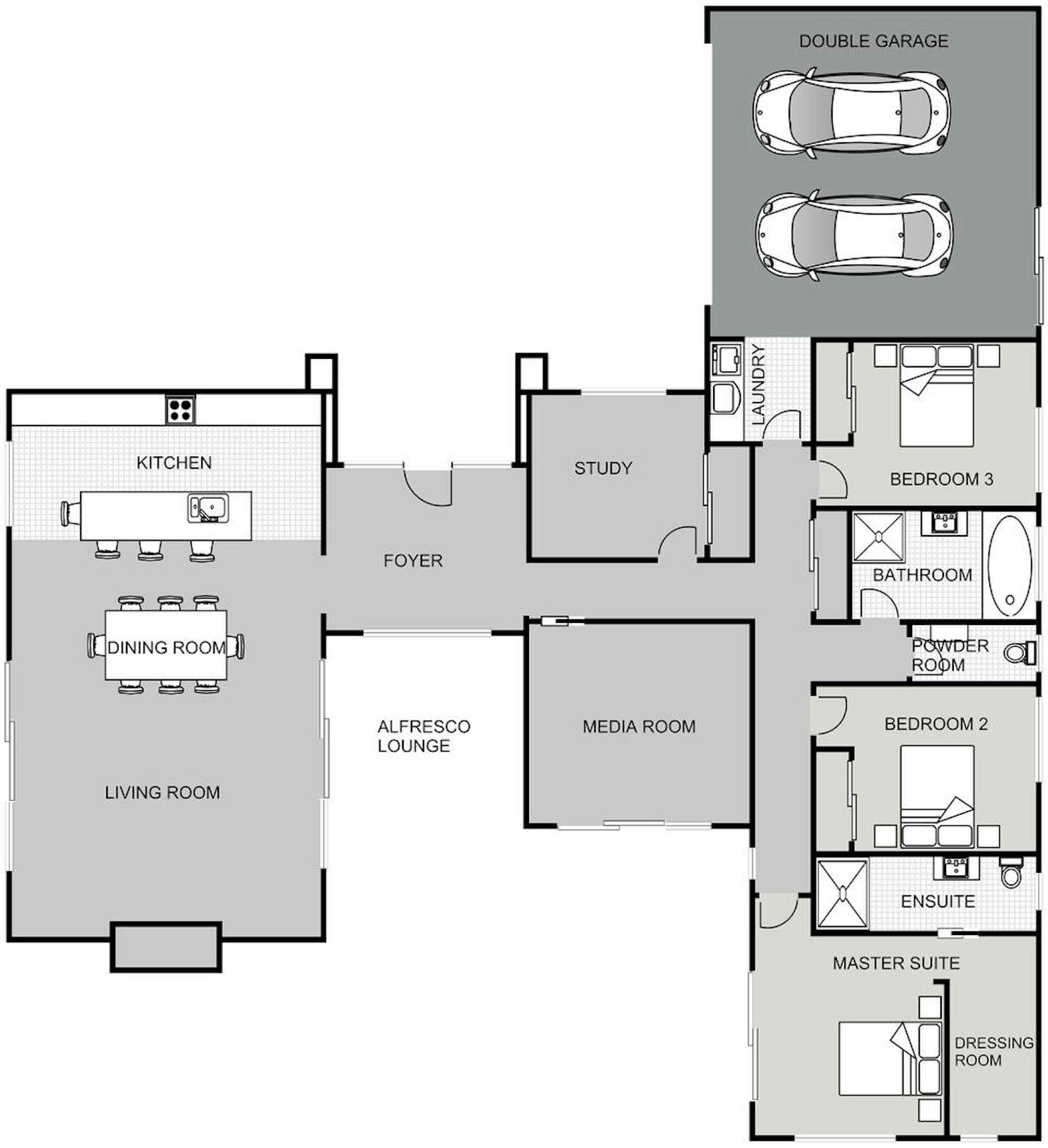
Our architecturally designed Fernbrook build is packed full of design inspiration. It features bright and open-plan living areas, with cathedral ceilings through the lounge, dining and kitchen, plus a luxurious interior fire feature, separate media room and designer kitchen.
The Signature Plus Collection showhome features three generous double bedrooms (with an ensuite and dressing room in the master bedroom), a study/fourth bedroom, gorgeous island bench, beautiful indoor-outdoor flow and cleverly appointed stone block walls to provide privacy to the alfresco dining area.
Tastefully designed with beautiful interior finishings, this showhome is a must-see if you're thinking of building in Taranaki.
Watch home tour below:
2 Alex Place, New Plymouth
Open daily from 12pm-4pm.
Signature Homes TaranakiNew home enquiries:
0800 102 104
Other enquiries:
06 769 9023
Floorplans



