Priced plans Central Otago
The price is an indication of the build cost only and excludes land or site-related costs (such as landscaping, driveways and earthworks).
The price is an indication of the build cost only and excludes land or site-related costs (such as landscaping, driveways and earthworks).




This gorgeous two-bedroom Signature Homes home comes with street appeal and modern comforts. Thanks to its clever layout, there's a lot of space in this 111m2 square home.
View plan




The two double-bedroom Sumner is a modern and compact home, ideal for first-home buyers or anyone looking to subdivide their property and maximise the value of their section.
View plan




The Pinot house plan is light, bright and airy. Bringing in all the sunshine to the open plan living areas.
View plan




The Rimu house plan is ideal for families, the perfect fusion of style and functionality. Providing three generously sized bedrooms, the master bedroom features a large walk in robe and ensuite.
View plan




The popular Ohau plan sees the entryway open to a lovely view of a light-filled open-plan living and dining area, with two double bedrooms tucked away.
View plan




The Wanaka plan offers a well-thought-out design that adapts to the needs of modern families, combining elegance, functionality, and comfort into a single-level home.
View plan




The Perriam house plan is ideal for entertaining, with the large, open plan living, kitchen & dining area that gets all-day sun.
View plan




Meet 'Matua', the ultimate haven for adventure-loving humans. Designed for those always on the go, Matua offers a low-maintenance design without sacrificing comfort. Imagine returning from a brisk day on the slopes to unwind in a cosy, welcoming space that's ready to greet you in pristine condition. Whether it's your full-time residence or a cherished getaway, Matua is the perfect lock-up-and-leave retreat that is always ready for you.
View plan




The Cromwell: a single-level three-bedroom house plan is designed for relaxed living, offering a balance of private and shared spaces. With three bedrooms, multiple living areas, and well-planned utility spaces, it provides everything needed for a comfortable lifestyle.
View plan




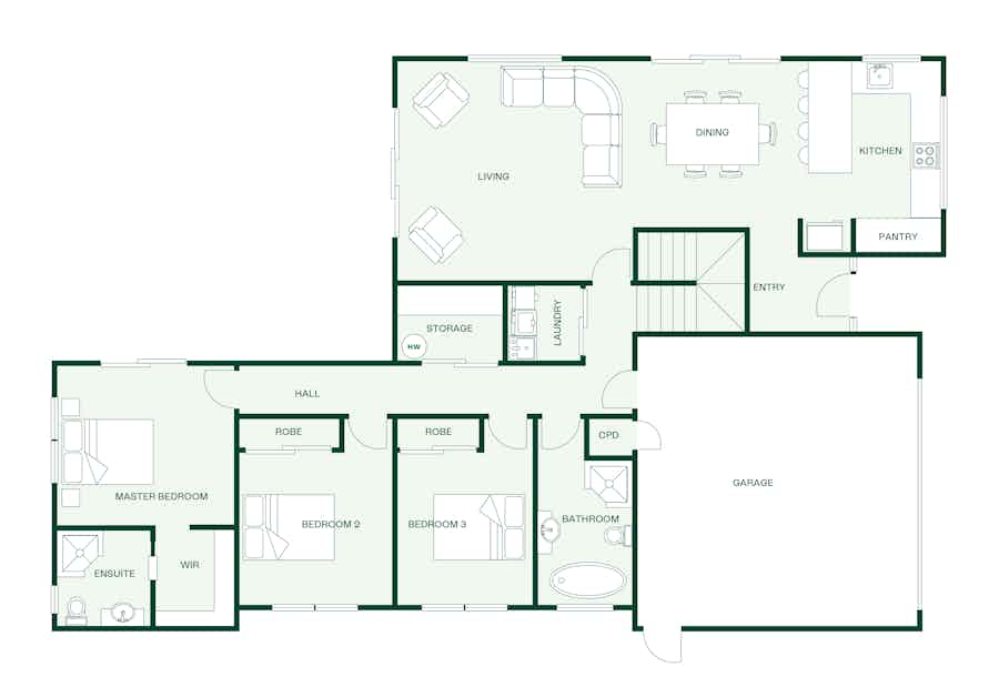
This single-level three bedroom home combines comfort, style, and practicality, featuring multiple living areas, well-appointed bedrooms, and an open-plan layout designed for relaxation and entertainment.
View plan




Our three-bedroom Tara-iti plan is a compact home that allows for generously proportioned bedrooms and living spaces.
View plan




This well-designed four-bedroom home offers the perfect blend of open-plan living and private retreats. With multiple bathrooms, a functional kitchen, and versatile spaces, it is ideal for families of various sizes.
View plan




This three-bedroom house plan includes a one-bedroom studio, perfect for generating extra income or accommodating extended family.
View plan




Meet Alexandra, a family-inspired abode that’s a real head-turner. This charming home features three cosy bedrooms, a spacious living room, and an efficiently designed L-shaped kitchen - perfect for keeping an eye on the kids without them running around the island bench. Alexandra is your answer to stylish and practical family living.
View plan




Escape to this luxurious 260sqm country retreat, featuring four spacious bedrooms and two versatile living areas.
View plan