











































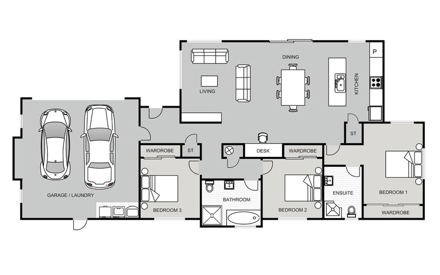
The Warkworth, a three bedroom house plan
Introducing our three-bedroom Warkworth plan, built as one of Signature Homes Showhomes in Warkworth, Auckland. It's a popular house plan for young families starting their property journey or those looking for a low maintainance lock-up and leave home.
Our Signature Service Promise
We believe building your home should feel exciting, not stressful. That’s why when you choose Signature Homes, you’ll get:
- The best building guarantees in NZ — so you can build with total peace of mind.
- The best service in the business — we’re with you every step of the way.
- Transparent, accurate pricing — no surprises, just honesty.
- Over 40 years of experience — helping Kiwis create homes they love.
- Accurate build timelines — so you always know what’s ahead.
Read more
Warkworth
House size 162㎡
- Beds3
- Bathrooms2
- Receptions1
- Parking2
Enquire about this plan
Warkworth Floorplan



