






















The Waimanu: A four-bedroom house plan by Signature Homes
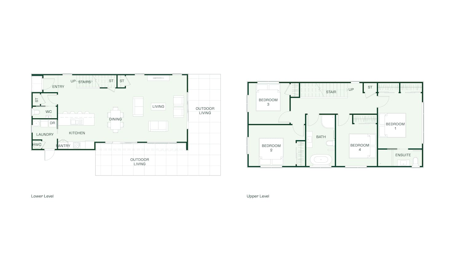
The light-filled Waimanu offers a stylish and cleverly designed family home. The open-plan ground floor allows for everyone to come together and also enjoy their own space, in the many spaces.
The upstairs landing opens onto four generous bedrooms including a master retreat complete with ensuite and his and hers wardrobes.
Build this home with the added peace of mind of Signature Homes fixed price guarantee.
Signature Plus is part of Signature Homes' collection of pre-designed house plans. This series presents top-tier specifications for both the home's exterior and interior. Each design boasts well-considered layouts, maximising space and harnessing natural light.
Customise this plan to suit your budget and lifestyle. Book your no-obligation new home workshop today.
Our Signature Service Promise
We believe building your home should feel exciting, not stressful. That’s why when you choose Signature Homes, you’ll get:
- The best building guarantees in NZ — so you can build with total peace of mind.
- The best service in the business — we’re with you every step of the way.
- Transparent, accurate pricing — no surprises, just honesty.
- Over 40 years of experience — helping Kiwis create homes they love.
- Accurate build timelines — so you always know what’s ahead.
Waimanu
House size 156㎡
- Beds4
- Bathrooms2.5
- Receptions1
Enquire about this plan
Waimanu Floorplan





