





































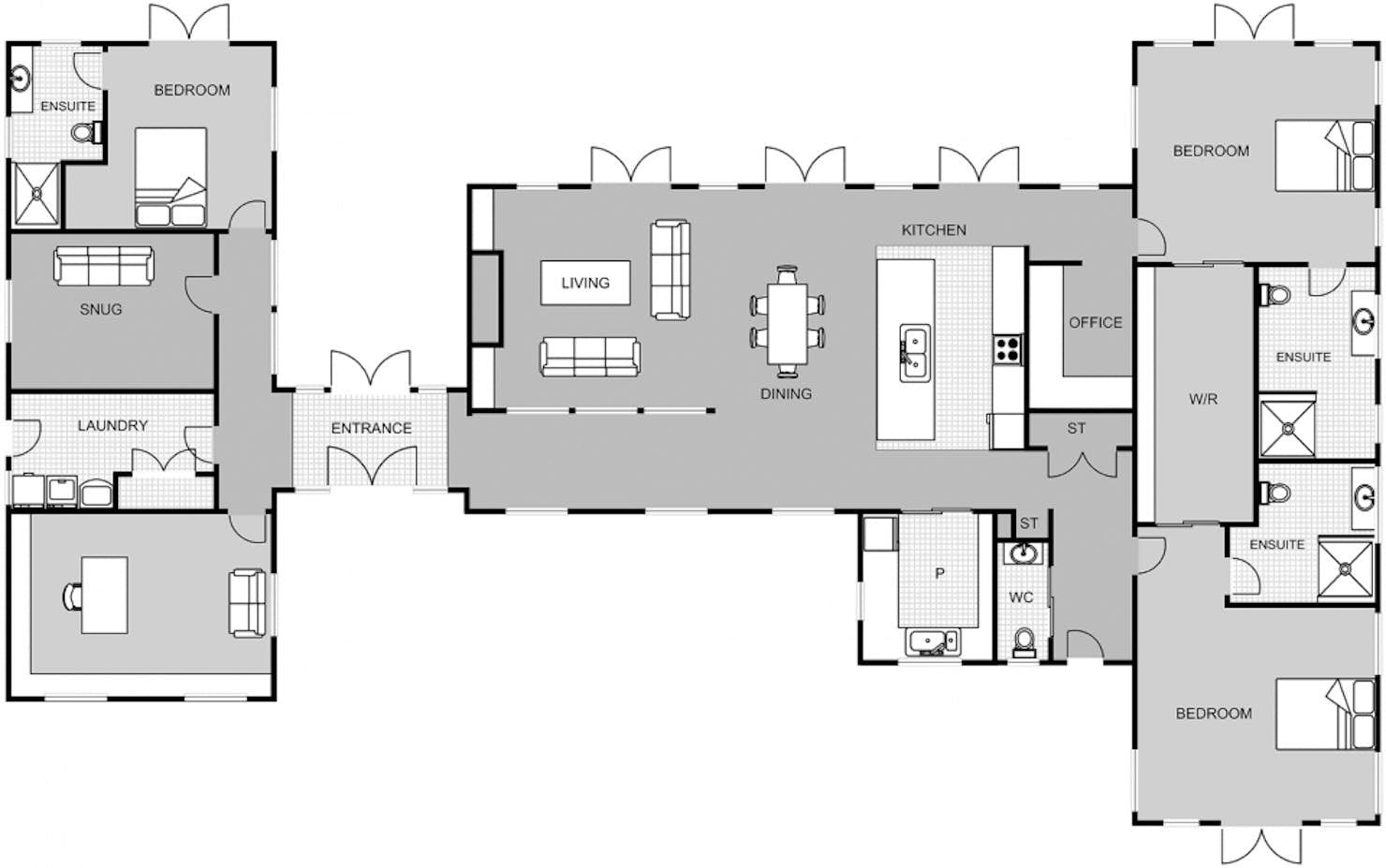
The Tetley: A Design and Build Collection home by Signature Homes
- Three bedrooms
- One study/office
- Three bathrooms - including ensuites in each bedroom
- WIR in master bedroom
- Separate WC for guests
- Separate laundry
- Open plan kitchen, living/dining area
- Walk in pantry
- Three living areas
- Double garage with internal access
Our Signature Service Promise
We believe building your home should feel exciting, not stressful. That’s why when you choose Signature Homes, you’ll get:
- The best building guarantees in NZ — so you can build with total peace of mind.
- The best service in the business — we’re with you every step of the way.
- Transparent, accurate pricing — no surprises, just honesty.
- Over 40 years of experience — helping Kiwis create homes they love.
- Accurate build timelines — so you always know what’s ahead.
Read more
Tetley
House size 232㎡
- Beds3
- Bathrooms3
- Receptions3
- studies1
- Parking2
Enquire about this plan
Tetley Floorplan




