































The Tauwhare: A Design and Build Collection home by Signature Homes
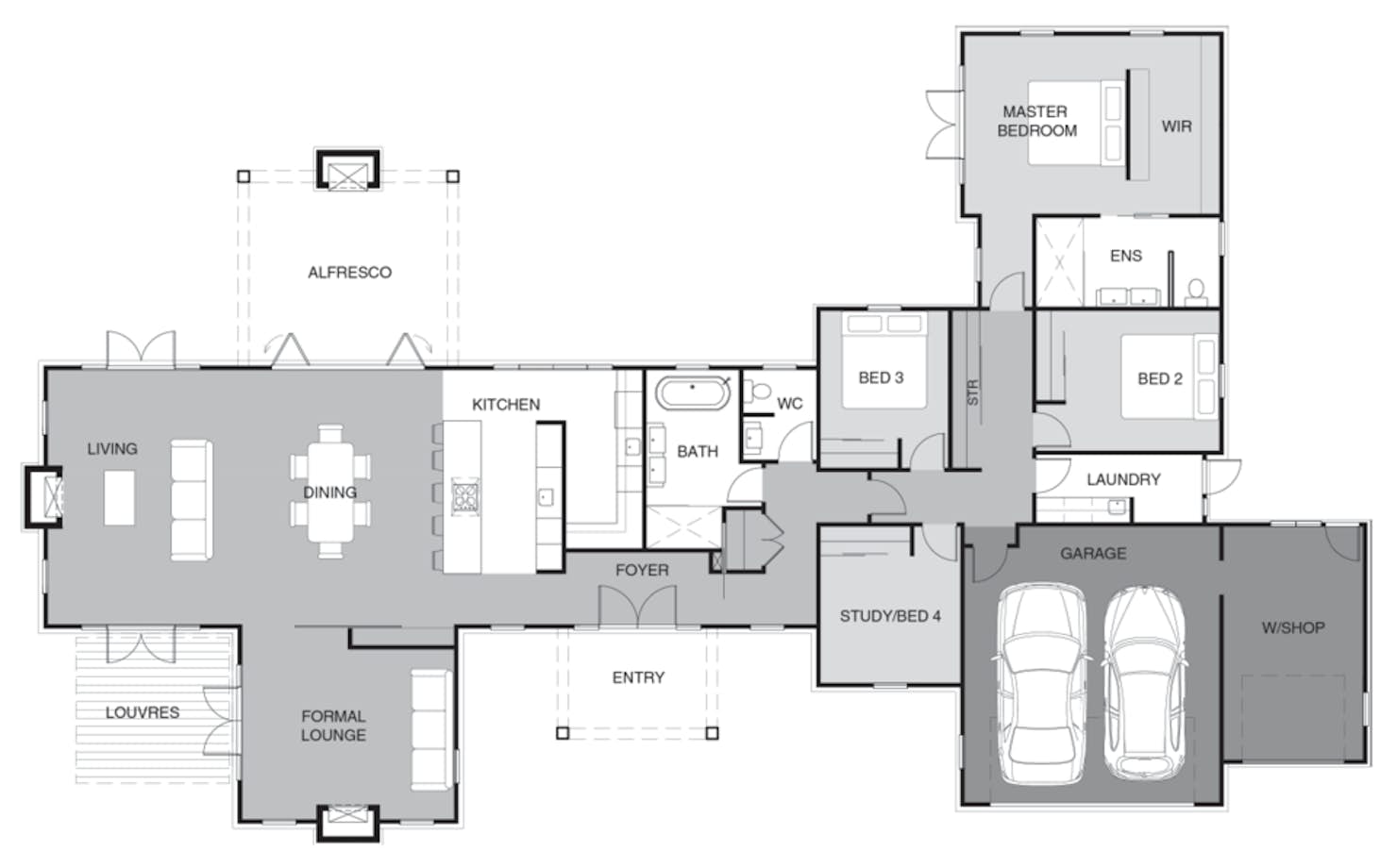
This modern, light-filled three-bedroom home is an entertainer's dream, offering spacious living areas that open out to alfresco dining with an outdoor fireplace and a fully fenced pool area. The main living/dining area merges seamlessly with the kitchen, with a large island providing additional seating there's plenty of space for all the family and friends. And an absolute must for any modern new home - a butler's pantry providing you with an abundance of space and kitchen storage.
With oversized white-toned brick, aerated concrete detail, and dark Colorsteel Endura long run roofing, this really is a stunningly designed home built to last the test of time.
Our Signature Service Promise
We believe building your home should feel exciting, not stressful. That’s why when you choose Signature Homes, you’ll get:
- The best building guarantees in NZ — so you can build with total peace of mind.
- The best service in the business — we’re with you every step of the way.
- Transparent, accurate pricing — no surprises, just honesty.
- Over 40 years of experience — helping Kiwis create homes they love.
- Accurate build timelines — so you always know what’s ahead.
Tauwhare
House size 310㎡
- Beds3
- Bathrooms2
- Receptions2
- studies1
- Parking3
Enquire about this plan
Tauwhare Floorplan




