































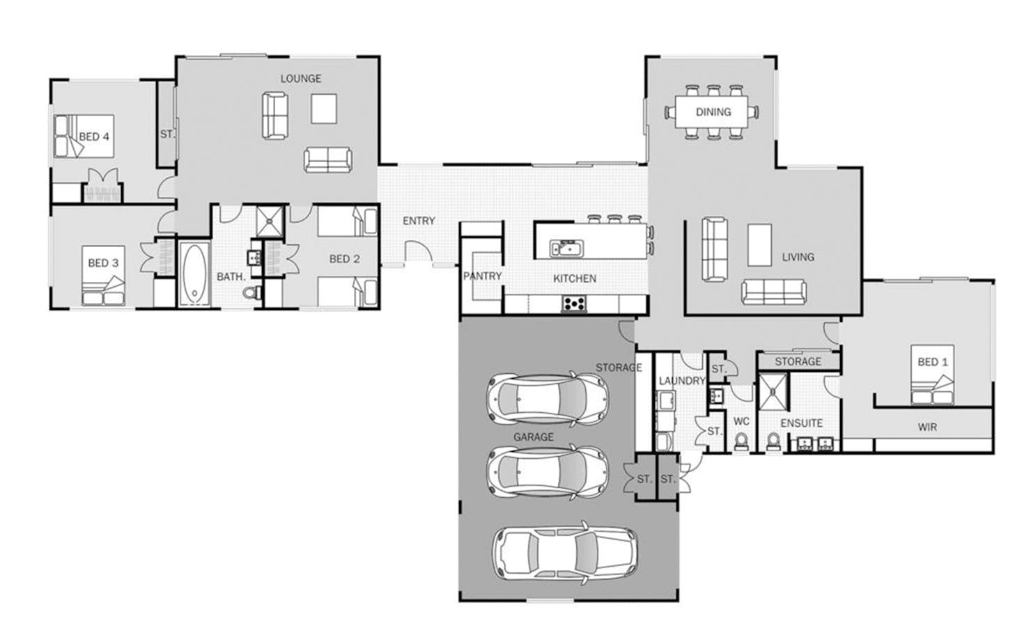
The Seaview: A Design and Build Collection home by Signature Homes
Features:
- Four bedrooms
- Two bathrooms - including ensuite in master bedroom
- WIR in master bedroom
- Separate WC for guests
- Separate laundry
- Open plan kitchen, lounge/dining area
- Two living areas
- Separate pantry
- Separate shower and bath in the bathroom
- Double garage with internal access
Our Signature Service Promise
We believe building your home should feel exciting, not stressful. That’s why when you choose Signature Homes, you’ll get:
- The best building guarantees in NZ — so you can build with total peace of mind.
- The best service in the business — we’re with you every step of the way.
- Transparent, accurate pricing — no surprises, just honesty.
- Over 40 years of experience — helping Kiwis create homes they love.
- Accurate build timelines — so you always know what’s ahead.
Read more
Seaview
House size 331㎡
- Beds4
- Bathrooms2.5
- Receptions2
- Parking3
Enquire about this plan
Seaview Floorplan




