

















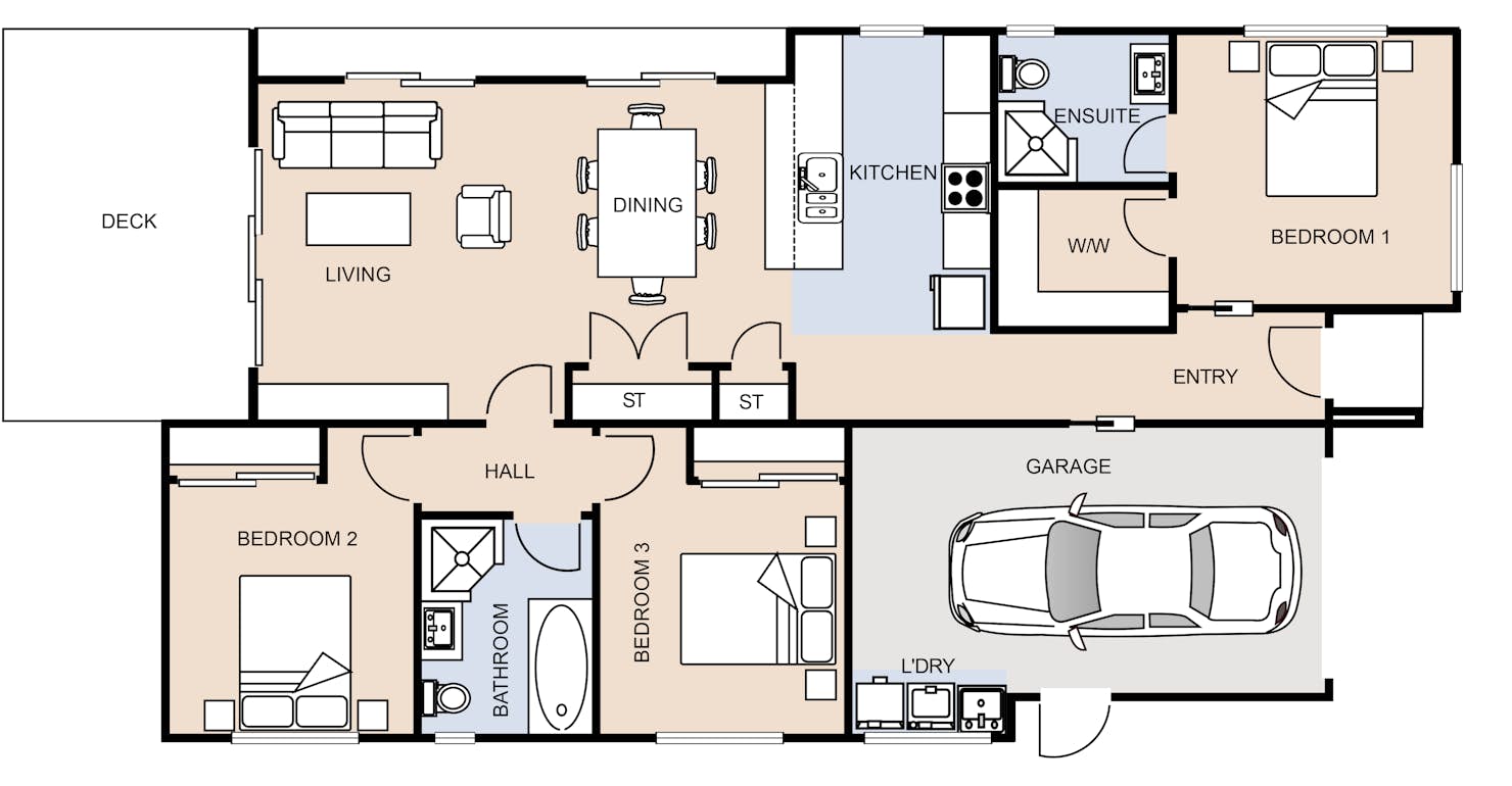
The Rimu: A three-bedroom house plan by Signature Homes
The Rimu house plan is ideal for families, the perfect fusion of style and functionality. Providing three generously sized bedrooms, the master bedroom features a large walk-in robe and ensuite. The open kitchen, living and dining space allow for an abundance of natural light with easy access to the outdoors.
Signature Plus is part of Signature Homes' collection of pre-designed house plans. This series presents top-tier specifications for both the home's exterior and interior. Each design boasts well-considered layouts, maximising space and harnessing natural light.
Our Signature Service Promise
We believe building your home should feel exciting, not stressful. That’s why when you choose Signature Homes, you’ll get:
- The best building guarantees in NZ — so you can build with total peace of mind.
- The best service in the business — we’re with you every step of the way.
- Transparent, accurate pricing — no surprises, just honesty.
- Over 40 years of experience — helping Kiwis create homes they love.
- Accurate build timelines — so you always know what’s ahead.
Explore our latest new home inspiration brochures here.
Rimu
House size 122㎡
- Beds3
- Bathrooms2
- Receptions1
- Parking1
Enquire about this plan
Rimu Floorplan



