





















The Pupuke: A four-bedroom house plan by Signature Homes
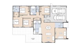
The surprisingly spacious Pupuke will fit your family perfectly now, and for years to come. The master bedroom in the Pupuke is located at the far end of the house and features an ensuite which is accessed via a roomy walk-in robe. The flexible floorplan banishes clutter with plenty of storage space.
The gourmet kitchen boasts a butler’s pantry and oversized island bench perfect for homework or buffet when entertainning. Sliding doors extend the home’s social space out into the backyard from the open-plan dining and family area.
Build this home with the added peace of mind of Signature Homes fixed price guarantee.
Signature Plus is part of Signature Homes' collection of pre-designed house plans. This series presents top-tier specifications for both the home's exterior and interior. Each design boasts well-considered layouts, maximising space and harnessing natural light.
Customise this plan to suit your budget and lifestyle. Book your no-obligation new home workshop today.
Our Signature Service Promise
We believe building your home should feel exciting, not stressful. That’s why when you choose Signature Homes, you’ll get:
- The best building guarantees in NZ — so you can build with total peace of mind.
- The best service in the business — we’re with you every step of the way.
- Transparent, accurate pricing — no surprises, just honesty.
- Over 40 years of experience — helping Kiwis create homes they love.
- Accurate build timelines — so you always know what’s ahead.
Pupuke
House size 214㎡
- Beds4
- Bathrooms2
- Receptions2
- Parking2
Enquire about this plan
Pupuke Floorplan



