









The Pathfinder: A three-bedroom house plan by Signature Homes
Open-plan living spaces and a ground floor dedicated to bedrooms make the Pathfinder the perfect family home.
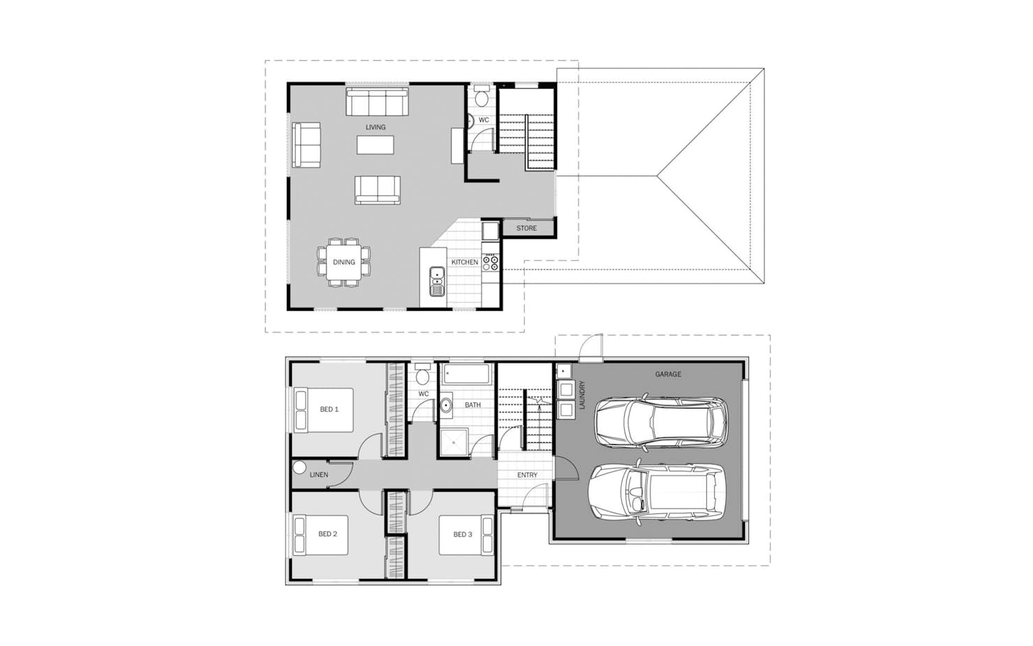
You are greeted by a light-filled entry and staircase which leads you to the second-floor kitchen, dining, and living. A powder room is also available on this floor. Downstairs you will find three double bedrooms, family bathroom, and separate WC. The master suite includes a double wardrobe.
Build this home with the added peace of mind of Signature Homes fixed price guarantee.
Signature Plus is part of Signature Homes' collection of pre-designed house plans. This series presents top-tier specifications for both the home's exterior and interior. Each design boasts well-considered layouts, maximising space and harnessing natural light.
Customise this plan to suit your budget and lifestyle. Book your no-obligation new home workshop today.
Our Signature Service Promise
We believe building your home should feel exciting, not stressful. That’s why when you choose Signature Homes, you’ll get:
- The best building guarantees in NZ — so you can build with total peace of mind.
- The best service in the business — we’re with you every step of the way.
- Transparent, accurate pricing — no surprises, just honesty.
- Over 40 years of experience — helping Kiwis create homes they love.
- Accurate build timelines — so you always know what’s ahead.
Pathfinder
House size 173㎡
- Beds3
- Bathrooms1.5
- Receptions1
- Parking2
Enquire about this plan
Pathfinder Floorplan




