

































The Parkland: A Design and Build Collection home by Signature Homes
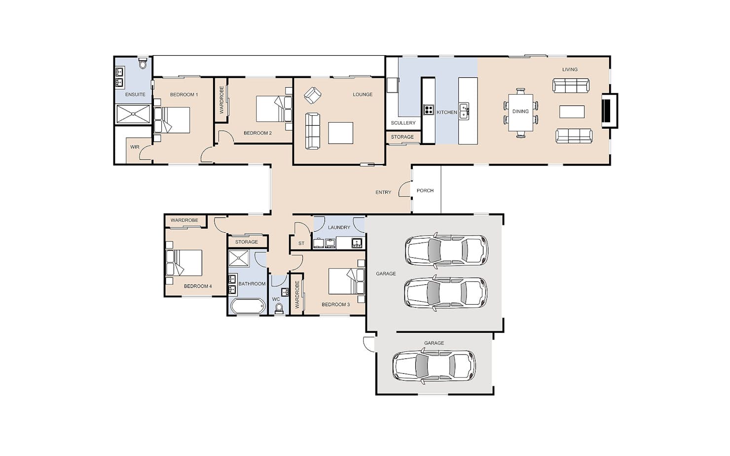
Introducing Signature Homes Parkland house plan, a stunning four-bedroom Pavilion style home.
As you walk through the front door, you're welcomed by a wide hallway, with feature glass windows framing the garden and adding a natural element to the home.
The master suite is separated from the other three bedrooms, and open-plan living is ideal for entertaining. A media room provides a cosy space for relaxation, making our Parkland plan ideal for family living.
Further bonuses include a three-car garage, impressive walk-in pantry and generous separate laundry.
Our Signature Service Promise
We believe building your home should feel exciting, not stressful. That’s why when you choose Signature Homes, you’ll get:
- The best building guarantees in NZ — so you can build with total peace of mind.
- The best service in the business — we’re with you every step of the way.
- Transparent, accurate pricing — no surprises, just honesty.
- Over 40 years of experience — helping Kiwis create homes they love.
- Accurate build timelines — so you always know what’s ahead.
Parkland
House size 281㎡
- Beds4
- Bathrooms2
- Receptions2
- Parking3
Enquire about this plan
Parkland Floorplan




