



























The Park Green: Design-forward living
The Park Green brings together architectural flair and practical family features in one beautifully finished home. With light-filled living spaces, thoughtful design details, and seamless flow throughout, this showhome reflects what it means to live well every day. When you build with Signature Homes, you’ll enjoy the best building guarantees in New Zealand, award-winning service, transparent pricing, and accurate build timings—plus a build experience designed to be as enjoyable as the finished home.
Our Signature Service Promise
We believe building your home should feel exciting, not stressful. That’s why when you choose Signature Homes, you’ll get:
- The best building guarantees in NZ — so you can build with total peace of mind.
- The best service in the business — we’re with you every step of the way.
- Transparent, accurate pricing — no surprises, just honesty.
- Over 40 years of experience — helping Kiwis create homes they love.
- Accurate build timelines — so you always know what’s ahead.
Read more
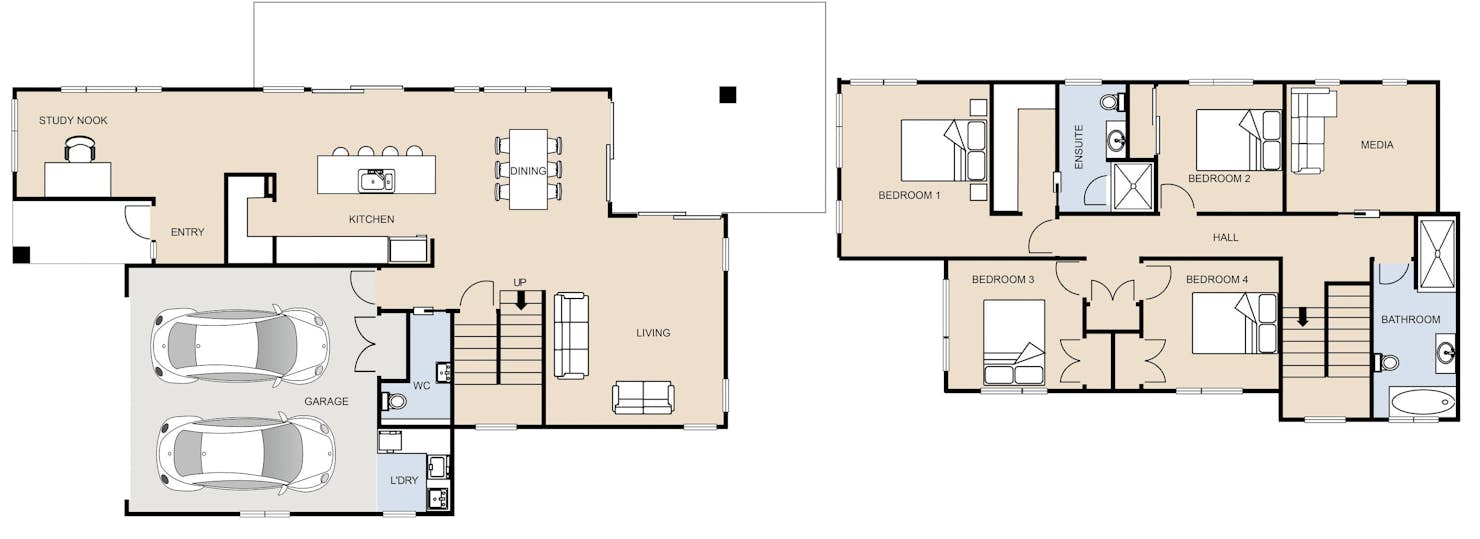
Park Green
House size 243㎡
- Beds4
- Bathrooms2.5
- Receptions2
- Parking2
Enquire about this plan
Park Green Floorplan




