

















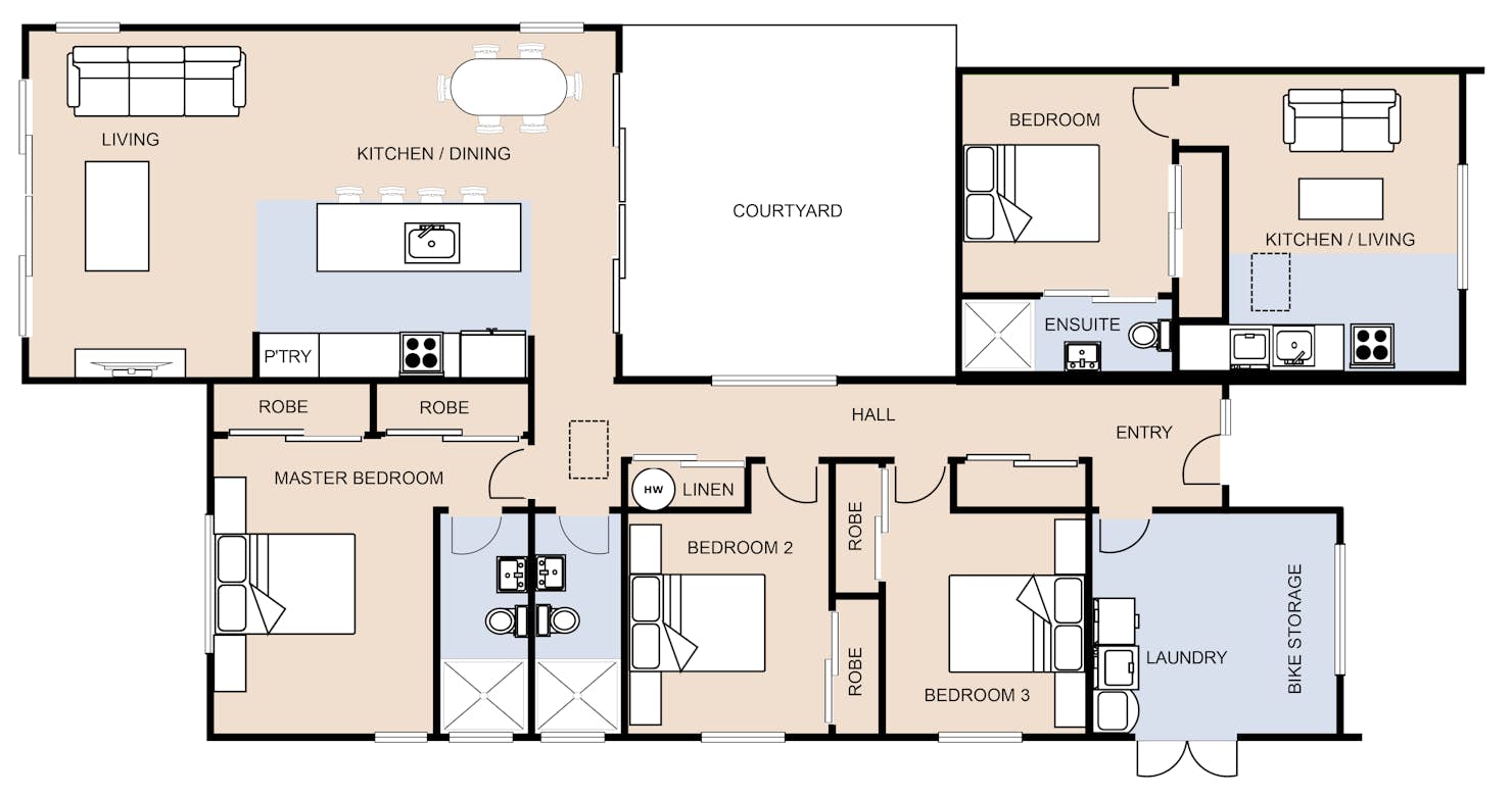
Meet Ophir - a three bedroom home with studio
Meet Ophir — a thoughtfully designed single-level home that combines style, versatility, and modern living. This three-bedroom house plan includes a one-bedroom studio, perfect for generating extra income or accommodating extended family.
Plan features:
- Versatility: A three-bedroom home paired with a self-contained studio, ideal for rental opportunities or flexible living arrangements.
- Spacious Primary Bedroom: The master bedroom boasts generous wardrobe space and a private ensuite for ultimate comfort.
- Open Living & Dining: An airy, open-plan layout creates the perfect space for entertaining, with abundant natural light and seamless access to outdoor living areas.
Ophir is the ideal home for those who value smart, versatile design and a lifestyle that adapts to your needs.
Our Signature Service Promise
We believe building your home should feel exciting, not stressful. That’s why when you choose Signature Homes, you’ll get:
- The best building guarantees in NZ — so you can build with total peace of mind.
- The best service in the business — we’re with you every step of the way.
- Transparent, accurate pricing — no surprises, just honesty.
- Over 40 years of experience — helping Kiwis create homes they love.
- Accurate build timelines — so you always know what’s ahead.
Read more
Ophir
House size 147㎡
- Beds4
- Bathrooms3
- Receptions2
Enquire about this plan
Ophir Floorplan



