



















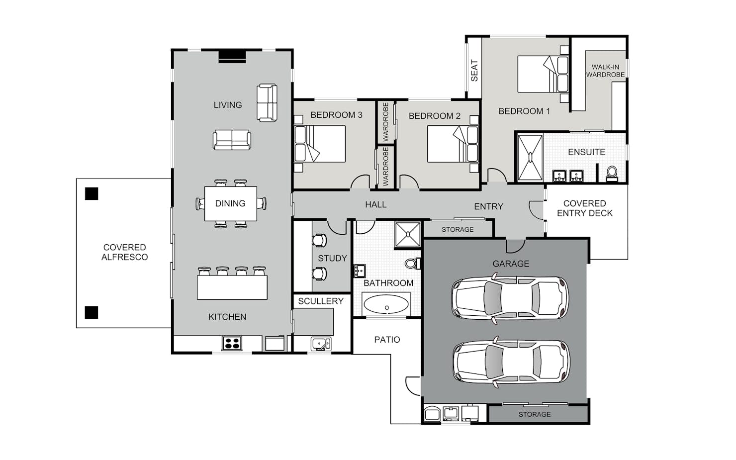
The Ohauiti, a three- bedroom house plan
Signature Homes Ohauiti three-bedroom house plan makes for an ideal home for those starting on their property journey or those looking to downsize.
Working from home is a breeze with a separate study, which can be converted into a nursery. No space has been spared in the master bedroom with a large ensuite and walk-in wardrobe.
Build our Ohauiti house plan with a fixed price as part of our market-leading building guarantees - the most comprehensive in NZ.
Our Signature Service Promise
We believe building your home should feel exciting, not stressful. That’s why when you choose Signature Homes, you’ll get:
- The best building guarantees in NZ — so you can build with total peace of mind.
- The best service in the business — we’re with you every step of the way.
- Transparent, accurate pricing — no surprises, just honesty.
- Over 40 years of experience — helping Kiwis create homes they love.
- Accurate build timelines — so you always know what’s ahead.
Read more
Ohauiti
House size 188㎡
- Beds3
- Bathrooms2
- Receptions1
- studies1
- Parking2
Enquire about this plan
Ohauiti Floorplan



