











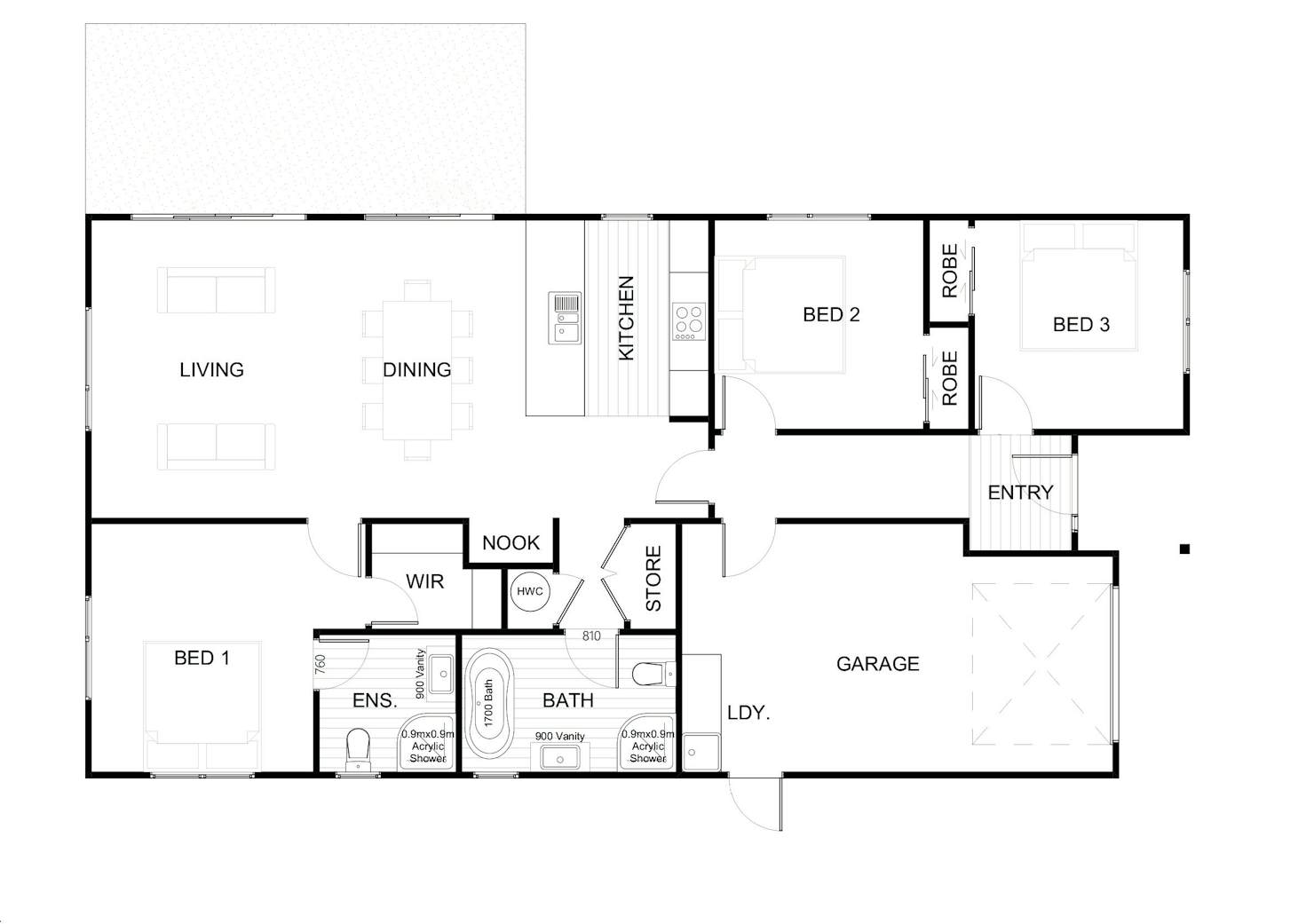
The Ohau: A three-bedroom house plan by Signature Homes
The popular Ohau plan sees the entryway open to a lovely view of a light-filled open-plan living and dining
area, with two double bedrooms tucked away.
The master suite, with walk-in wardrobe and ensuite remains in the same private spot, as does the internally accessed single garage and laundry.
Our Signature Service Promise
We believe building your home should feel exciting, not stressful. That’s why when you choose Signature Homes, you’ll get:
- The best building guarantees in NZ — so you can build with total peace of mind.
- The best service in the business — we’re with you every step of the way.
- Transparent, accurate pricing — no surprises, just honesty.
- Over 40 years of experience — helping Kiwis create homes they love.
- Accurate build timelines — so you always know what’s ahead.
Read more
Ohau - Option 3
House size 139㎡
- Beds3
- Bathrooms2
- Receptions1
- Parking1
Enquire about this plan
Ohau - Option 3 Floorplan



