















The Nikau: An Urban Collection home by Signature Homes
Our Signature Service Promise
We believe building your home should feel exciting, not stressful. That’s why when you choose Signature Homes, you’ll get:
- The best building guarantees in NZ — so you can build with total peace of mind.
- The best service in the business — we’re with you every step of the way.
- Transparent, accurate pricing — no surprises, just honesty.
- Over 40 years of experience — helping Kiwis create homes they love.
- Accurate build timelines — so you always know what’s ahead.
Read more
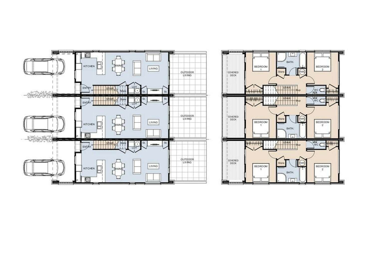
Nikau
House size 96㎡
- Beds2
- Bathrooms1
- Receptions1
Enquire about this plan
Nikau Floorplan





