


















The Mt Eden: A three-bedroom house plan by Signature Homes
With its clever layout and stunning design, the Mt Eden offers a touch of luxury for everyday living.
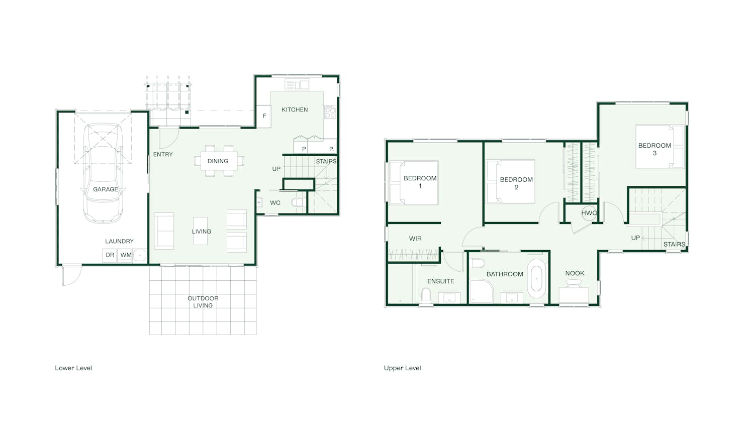
The designer kitchen features generous bench space and plenty of storage. The open-plan living and dining area opens onto an outdoor living area, seamlessly integrated by the main roof line.
You will be greeted by a light-filled study nook upstairs, along with three generous bedrooms and a spacious family bathroom. The master retreat runs from the front to the back of the home and encompasses a walk-in wardrobe and ensuite with oversized shower.
Signature Plus is part of Signature Homes' collection of pre-designed house plans. This series presents top-tier specifications for both the home's exterior and interior. Each design boasts well-considered layouts, maximising space and harnessing natural light.
Customise this plan to suit your budget and lifestyle. Book your no-obligation new home workshop today.
Our Signature Service Promise
We believe building your home should feel exciting, not stressful. That’s why when you choose Signature Homes, you’ll get:
- The best building guarantees in NZ — so you can build with total peace of mind.
- The best service in the business — we’re with you every step of the way.
- Transparent, accurate pricing — no surprises, just honesty.
- Over 40 years of experience — helping Kiwis create homes they love.
- Accurate build timelines — so you always know what’s ahead.
Mt Eden
House size 158㎡
- Beds3
- Bathrooms2.5
- Receptions1
- Parking1
Enquire about this plan
Mt Eden Floorplan





