













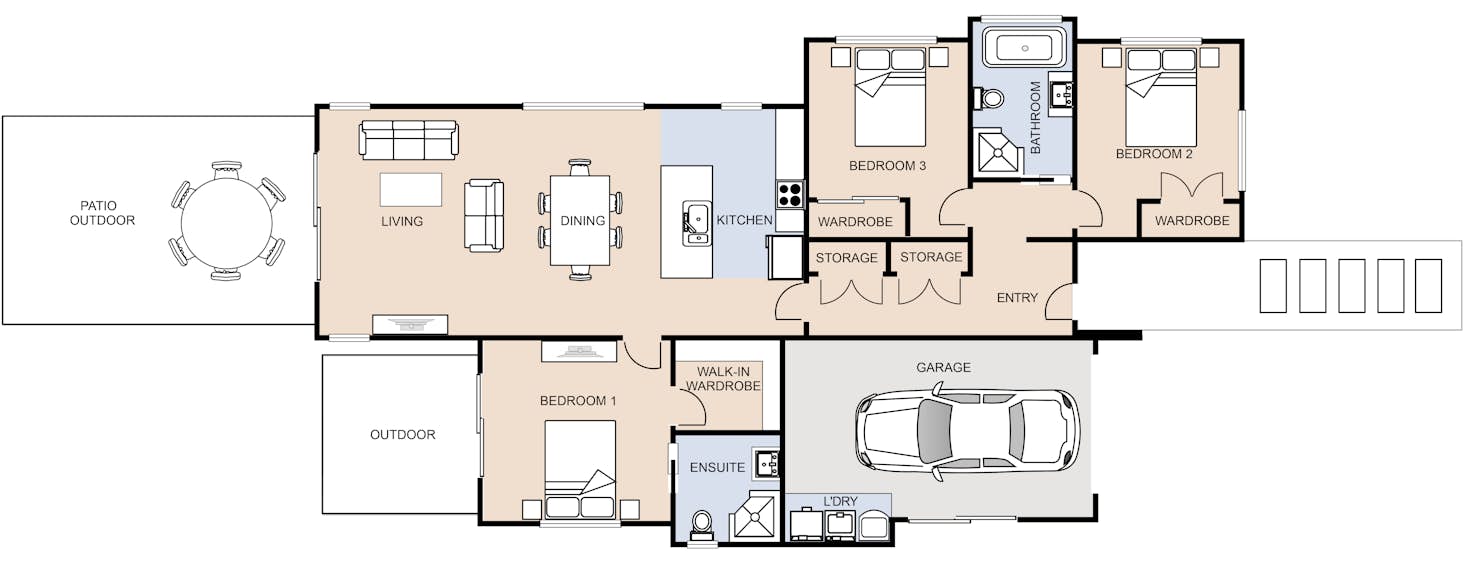
The Milldale: A three-bedroom house plan by Signature Homes
Key build features:
- Three double bedrooms
- Two Bathrooms including a suite in the master
- Open-plan living and dining area
- Designer kitchen
- Single garage with internal access
Our Signature Service Promise
We believe building your home should feel exciting, not stressful. That’s why when you choose Signature Homes, you’ll get:
- The best building guarantees in NZ — so you can build with total peace of mind.
- The best service in the business — we’re with you every step of the way.
- Transparent, accurate pricing — no surprises, just honesty.
- Over 40 years of experience — helping Kiwis create homes they love.
- Accurate build timelines — so you always know what’s ahead.
Read more
Milldale
House size 133㎡
- Beds3
- Bathrooms2
- Receptions1
- Parking1
Enquire about this plan
Milldale Floorplan



