







































































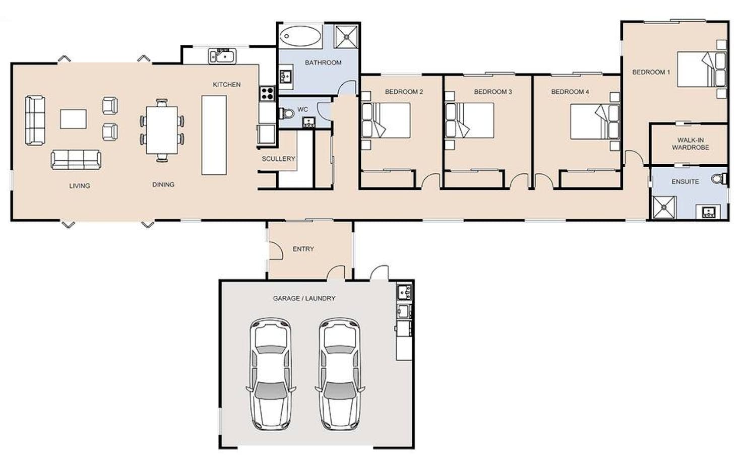
The Maxwell, a four bedroom house plan
If you're looking for a home that offers an indoor-outdoor flow, our Maxwell design is for you. The Pavilion style design is about easy flow and highly liveable spaces with four bedrooms and open living spaces for families to connect.
Dramatic dark brick makes up most of the home's exterior, with the addition of vertical shiplap cedar to the gabled ends, entrance, and covered areas to provide contrast.
Book your no-obligation new home workshop today.
Our Signature Service Promise
We believe building your home should feel exciting, not stressful. That’s why when you choose Signature Homes, you’ll get:
- The best building guarantees in NZ — so you can build with total peace of mind.
- The best service in the business — we’re with you every step of the way.
- Transparent, accurate pricing — no surprises, just honesty.
- Over 40 years of experience — helping Kiwis create homes they love.
- Accurate build timelines — so you always know what’s ahead.
Learn how you can acheive the look of our Maxwell build here.
Read more
Maxwell
House size 242㎡
- Beds4
- Bathrooms2
- Receptions1
- Parking2
Enquire about this plan
Maxwell Floorplan



