













































The Mapua: A Design and Build Collection home by Signature Homes
This Design & Build home was brought to life by our Nelson & Tasman team in the growing coastal town of Mapua, near Nelson.
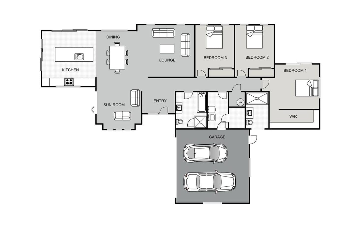
The plan features fantastic open-plan living, with a designer kitchen opening out to an impressive outdoor living area catching all day sun. The home comprises three generous double bedrooms, an additional living area in the form of a sunroom, two full bathrooms and a double garage, making it the perfect family home, especially for those who love to entertain.
Our Signature Service Promise
We believe building your home should feel exciting, not stressful. That’s why when you choose Signature Homes, you’ll get:
- The best building guarantees in NZ — so you can build with total peace of mind.
- The best service in the business — we’re with you every step of the way.
- Transparent, accurate pricing — no surprises, just honesty.
- Over 40 years of experience — helping Kiwis create homes they love.
- Accurate build timelines — so you always know what’s ahead.
Read more
Mapua
House size 202㎡
- Beds3
- Bathrooms2
- Receptions2
- Parking2
Enquire about this plan
Mapua Floorplan




