



















Meet Majah 81m2 - a compact stylish abode
Introducing the Majah, an 81m² home that blends style and function.
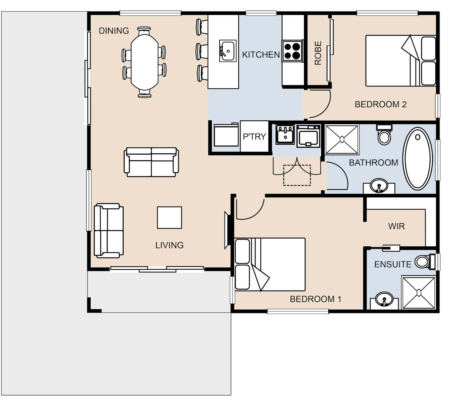
The Majah floorplan includes two well-appointed bedrooms; the master boasts an ensuite and walk-in robe. Externally, the Majah showcases a modern design with durable materials for low maintenance. It is perfect for small families or couples and offers contemporary living in a compact, efficient space.
Our Signature Service Promise
We believe building your home should feel exciting, not stressful. That’s why when you choose Signature Homes, you’ll get:
- The best building guarantees in NZ — so you can build with total peace of mind.
- The best service in the business — we’re with you every step of the way.
- Transparent, accurate pricing — no surprises, just honesty.
- Over 40 years of experience — helping Kiwis create homes they love.
- Accurate build timelines — so you always know what’s ahead.
Read more
Majah 81m2
House size 81㎡
- Beds2
- Bathrooms2
- Receptions1
Enquire about this plan
Majah 81m2 Floorplan




