















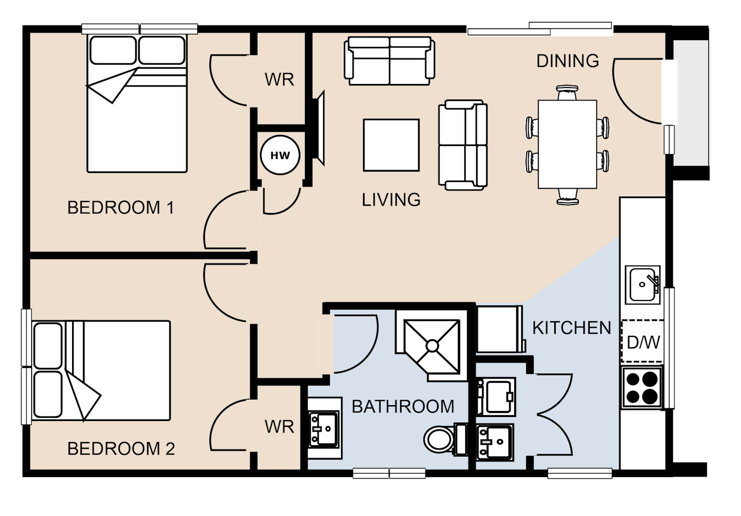
Meet Majah 58m2 - a stylish minor dwelling
Discover practical elegance with our two-bedroom minor dwelling, designed for efficient use of space without compromising style.
Our Majah design features a blend of warm wooden accents and modern dark panelling. This compact home includes a well-appointed kitchen, a full bathroom, and a living area that supports relaxation and entertaining. It is ideal for those seeking a smaller footprint with all the comforts of contemporary living.
Our Signature Service Promise
We believe building your home should feel exciting, not stressful. That’s why when you choose Signature Homes, you’ll get:
- The best building guarantees in NZ — so you can build with total peace of mind.
- The best service in the business — we’re with you every step of the way.
- Transparent, accurate pricing — no surprises, just honesty.
- Over 40 years of experience — helping Kiwis create homes they love.
- Accurate build timelines — so you always know what’s ahead.
Read more
Majah 58
House size 58㎡
- Beds2
- Bathrooms1
- Receptions1
Enquire about this plan
Majah 58 Floorplan



