





















The Macauley: A Design and Build Collection home by Signature Homes
The spacious Macauley plan will fit your family perfectly now, and for years to come.
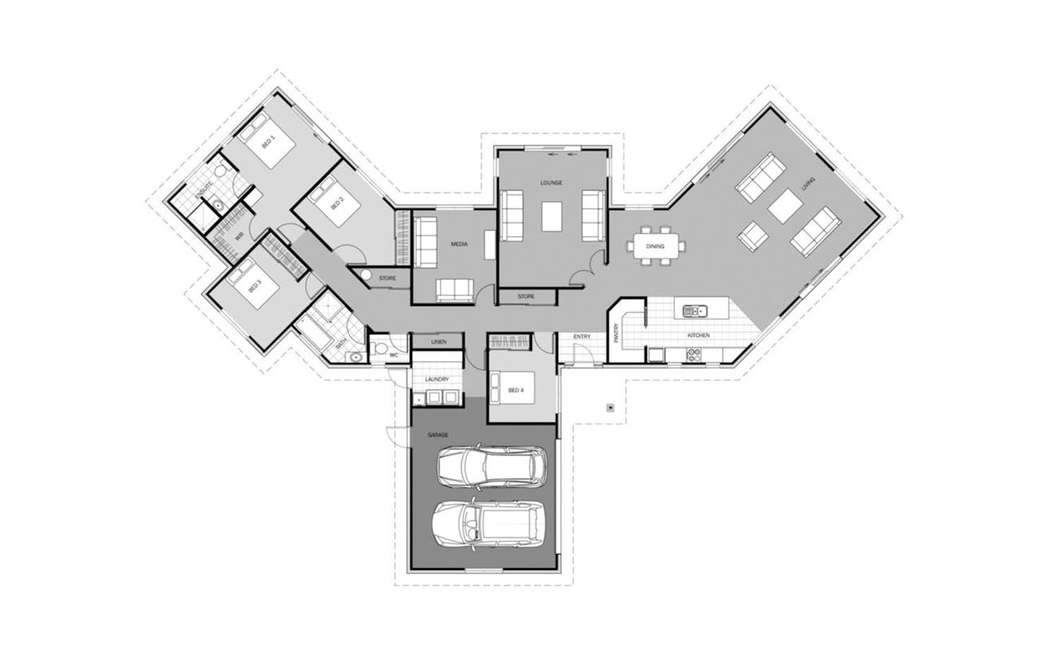
A flexible floorplan banishes clutter with plenty of storage space including numerous linen cupboards and built-in wardrobes in all bedrooms. There’s also a roomy separate lounge and also a home theatre.
The designer kitchen boasts a light-filled butler’s pantry and views over the open-plan living and dining room.
Four double bedrooms, including a master suite, ensure everyone has their own space.
Our Signature Service Promise
We believe building your home should feel exciting, not stressful. That’s why when you choose Signature Homes, you’ll get:
- The best building guarantees in NZ — so you can build with total peace of mind.
- The best service in the business — we’re with you every step of the way.
- Transparent, accurate pricing — no surprises, just honesty.
- Over 40 years of experience — helping Kiwis create homes they love.
- Accurate build timelines — so you always know what’s ahead.
Read more
Macauley
House size 278㎡
- Beds4
- Bathrooms2.5
- Receptions2
- Parking2
Enquire about this plan
Macauley Floorplan




