

























The Long Bay: A Design and Build Collection home by Signature Homes
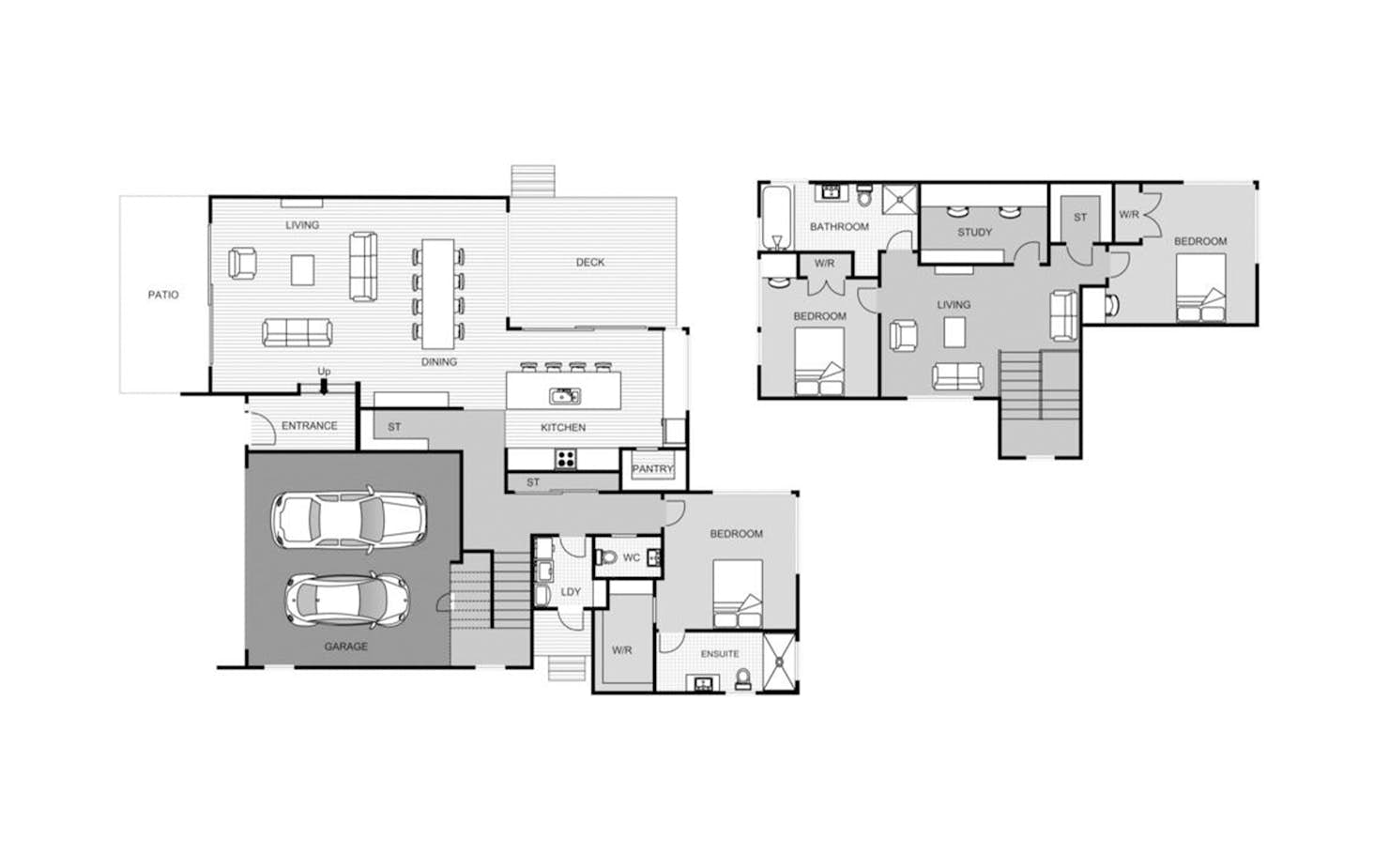
The Long Bay plan offers an expertly designed, two-level oasis with three bedrooms and two bathrooms. The floorplan embodies all the delights of a larger home in a compact, a well-designed layout that makes clever use of space.
Downstairs is where the socialising happens in the open-plan living, dining, kitchen and deck, along with the master retreat complete with ensuite and walk-in wardrobe.
Upstairs is a second living space, study, two double bedrooms which each have their own study nooks and a family bathroom.
Our Signature Service Promise
We believe building your home should feel exciting, not stressful. That’s why when you choose Signature Homes, you’ll get:
- The best building guarantees in NZ — so you can build with total peace of mind.
- The best service in the business — we’re with you every step of the way.
- Transparent, accurate pricing — no surprises, just honesty.
- Over 40 years of experience — helping Kiwis create homes they love.
- Accurate build timelines — so you always know what’s ahead.
Read more
Long Bay
House size 239㎡
- Beds3
- Bathrooms2
- Receptions2
- studies1
- Parking2
Enquire about this plan
Long Bay Floorplan




