















































The Kokowai: A Design and Build Collection home by Signature Homes
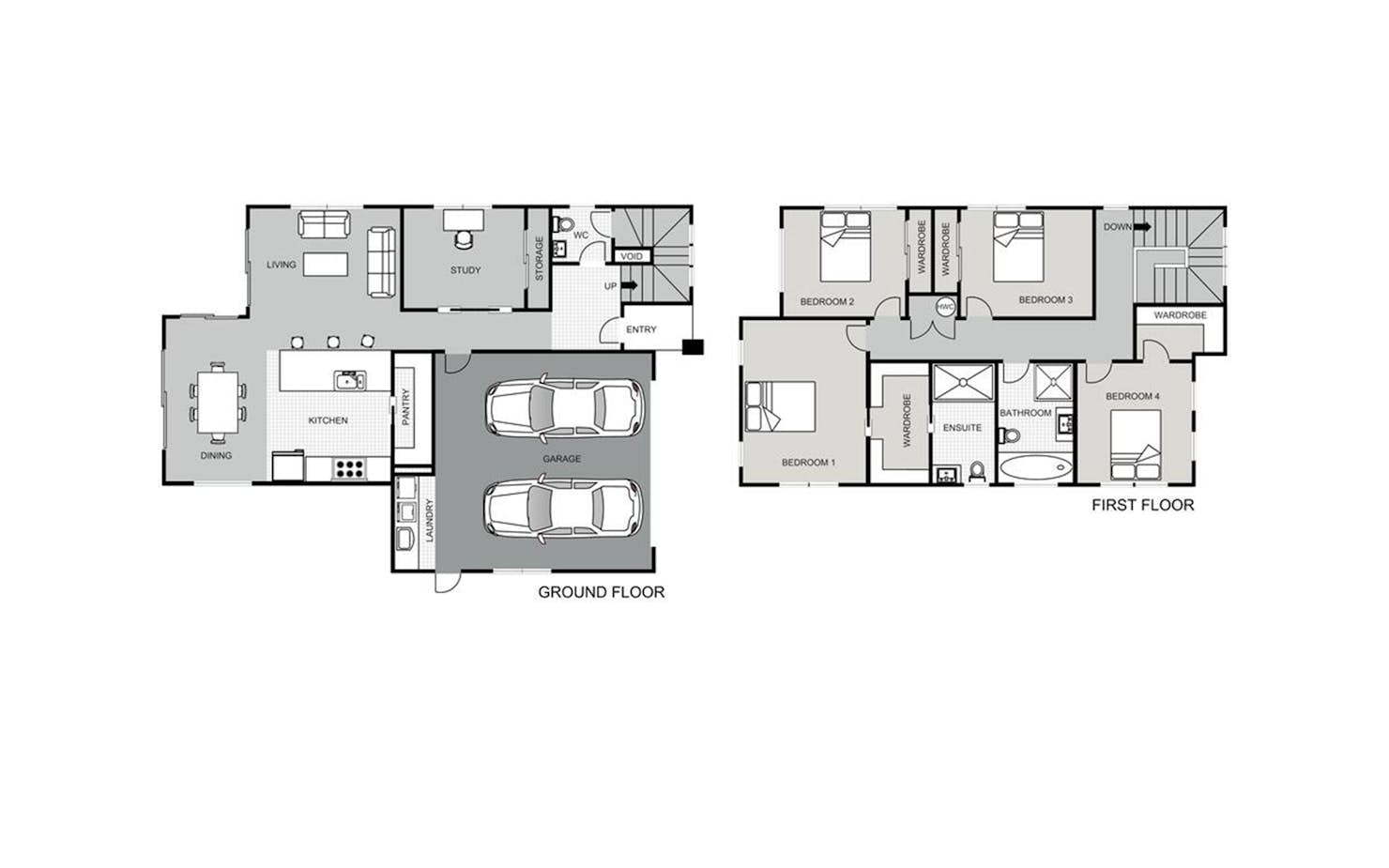
This two-level, four-bedroom family home in West Auckland is a fantastic design incorporating a large kitchen with butler's pantry, double internal access garage, and two walk-in-wardrobes for the upstairs bedrooms.
Plus, there is also a downstairs 'flexi-room' which could be utilised as a fifth bedroom, study, work-from-home space or second lounge!
Our Signature Service Promise
We believe building your home should feel exciting, not stressful. That’s why when you choose Signature Homes, you’ll get:
- The best building guarantees in NZ — so you can build with total peace of mind.
- The best service in the business — we’re with you every step of the way.
- Transparent, accurate pricing — no surprises, just honesty.
- Over 40 years of experience — helping Kiwis create homes they love.
- Accurate build timelines — so you always know what’s ahead.
Read more
Kokowai
House size 196㎡
- Beds4
- Bathrooms2.5
- Receptions1
- studies1
- Parking2
Enquire about this plan
Kokowai Floorplan




