















The Kingfisher: a three-bedroom house plan by Signature Homes
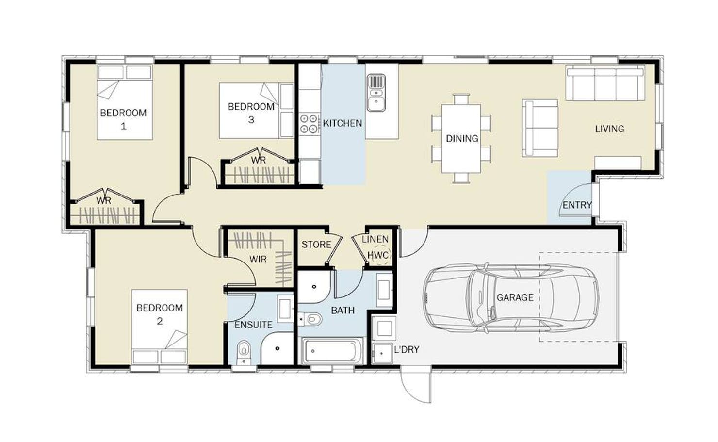
The three-bedroom Kingfisher plan offers low maintenance living and easy to navigate layout where the open plan living creates a lovely light-filled home that connects to the outdoors. The master bedroom features an ensuite and walk-in wardrobe. Each bedroom is generous in size, making the Kingfisher an ideal family home.
Build this home with the added peace of mind of Signature Homes fixed price guarantee.
Our Signature Series offers a variety of pre-designed house plans that embody the quintessential Kiwi lifestyle with their open plan layouts and practical designs. These homes are crafted to provide exceptional value without compromising on quality.
Customise this plan to suit your budget and lifestyle. Book your no-obligation new home workshop today.
Our Signature Service Promise
We believe building your home should feel exciting, not stressful. That’s why when you choose Signature Homes, you’ll get:
- The best building guarantees in NZ — so you can build with total peace of mind.
- The best service in the business — we’re with you every step of the way.
- Transparent, accurate pricing — no surprises, just honesty.
- Over 40 years of experience — helping Kiwis create homes they love.
- Accurate build timelines — so you always know what’s ahead.
Kingfisher
House size 130㎡
- Beds3
- Bathrooms2
- Receptions1
- Parking1
Enquire about this plan
Kingfisher Floorplan





