





















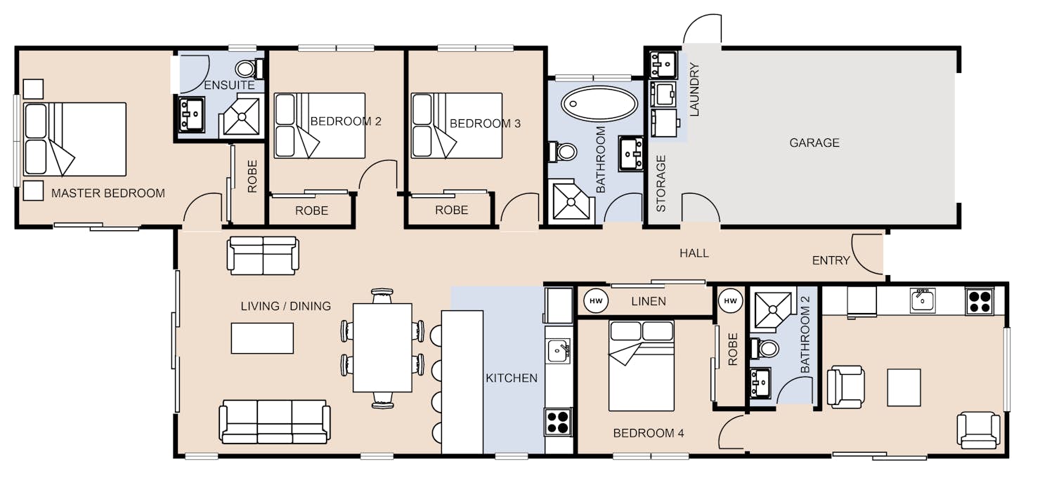
Meet Kawarau: a stylish four-bedroom retreat
Meet 'Kawarau' a well-designed four-bedroom home offers the perfect blend of open-plan living and private retreats. With multiple bathrooms, a functional kitchen, and versatile spaces, it is ideal for families of various sizes.
- Family-Focused Layout: The open-plan kitchen and living areas promote connectivity, while the four bedrooms and additional sitting area ensure privacy and flexibility.
- Master Retreat: The spacious master suite with its walk-in robe and ensuite offers a private sanctuary.
- Ample Storage: Built-in robes, a walk-in pantry, and linen closets enhance the home's functionality.
- Practical Additions: Multiple bathrooms, a well-equipped laundry, and direct garage access cater to modern family needs.
Our Signature Service Promise
We believe building your home should feel exciting, not stressful. That’s why when you choose Signature Homes, you’ll get:
- The best building guarantees in NZ — so you can build with total peace of mind.
- The best service in the business — we’re with you every step of the way.
- Transparent, accurate pricing — no surprises, just honesty.
- Over 40 years of experience — helping Kiwis create homes they love.
- Accurate build timelines — so you always know what’s ahead.
Read more
Kawarau
House size 153㎡
- Beds4
- Bathrooms3
- Receptions2
- Parking1
Enquire about this plan
Kawarau Floorplan



