















The Kaitake: A Design and Build Collection home by Signature Homes
This truly breathtaking home is set in a boutique subdivision amongst similar striking builds in coastal Oakura, Taranaki. Designed and situated on the impressive elevated site to take in the coastal views and all-day sun, the home was originally designed for a family with teenagers but has transitioned seamlessly into a forever home for two. A triple garage provides plenty of space for tinkering.
Our Signature Service Promise
We believe building your home should feel exciting, not stressful. That’s why when you choose Signature Homes, you’ll get:
- The best building guarantees in NZ — so you can build with total peace of mind.
- The best service in the business — we’re with you every step of the way.
- Transparent, accurate pricing — no surprises, just honesty.
- Over 40 years of experience — helping Kiwis create homes they love.
- Accurate build timelines — so you always know what’s ahead.
Read more
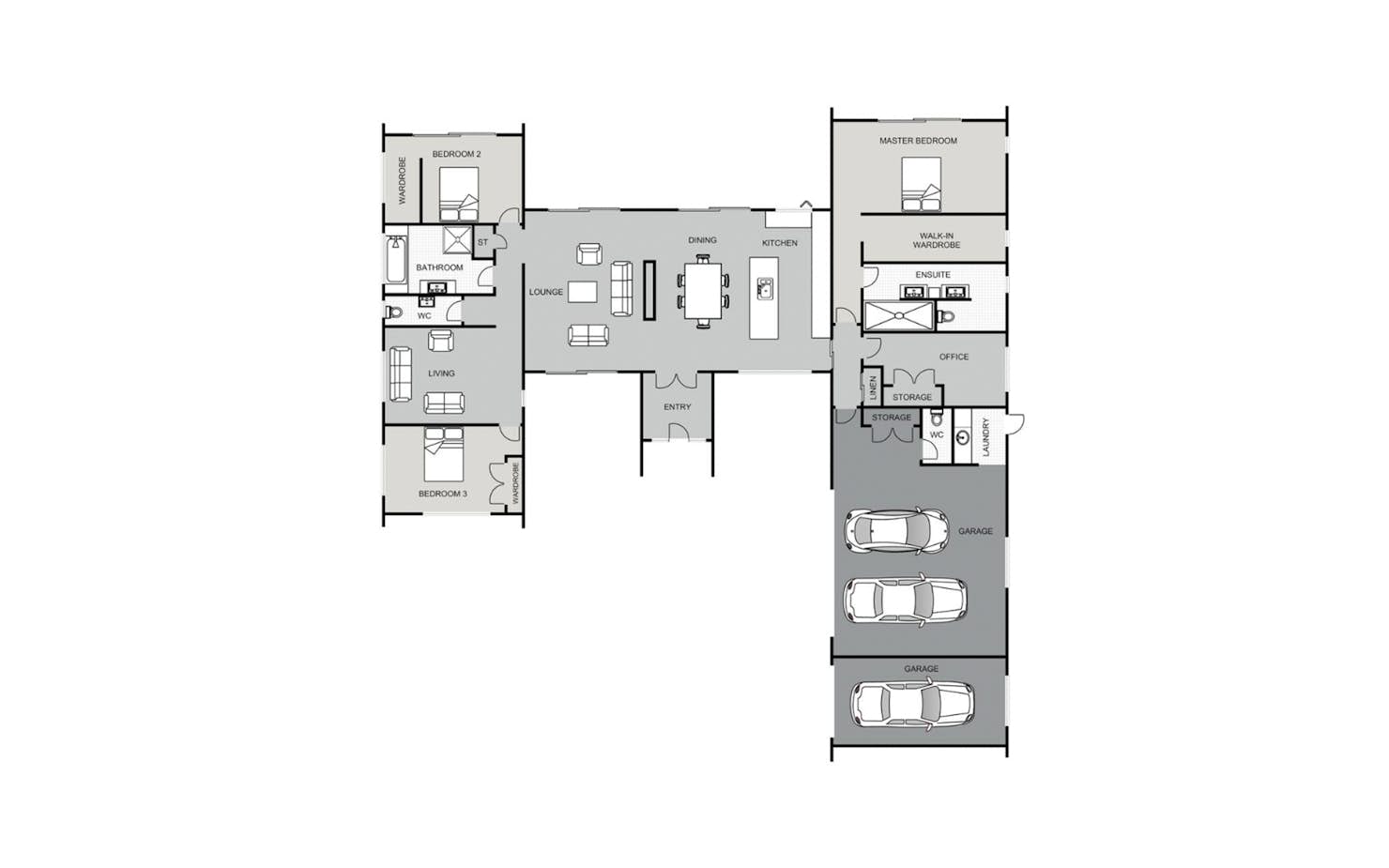
Kaitake
House size 268㎡
- Beds3
- Bathrooms2
- Receptions2
- studies1
- Parking3
Enquire about this plan
Kaitake Floorplan




