































The Greville: A Design and Build Collection home by Signature Homes
Honouring the beautiful environment was an absolute must-have when designing this stunning home right on the edge of Waihi Beach in the Bay of Plenty.
Everything was thoughtfully designed to bring the outside in, from the choice of cedar cladding right through to the engineered timber floors in antique oak.
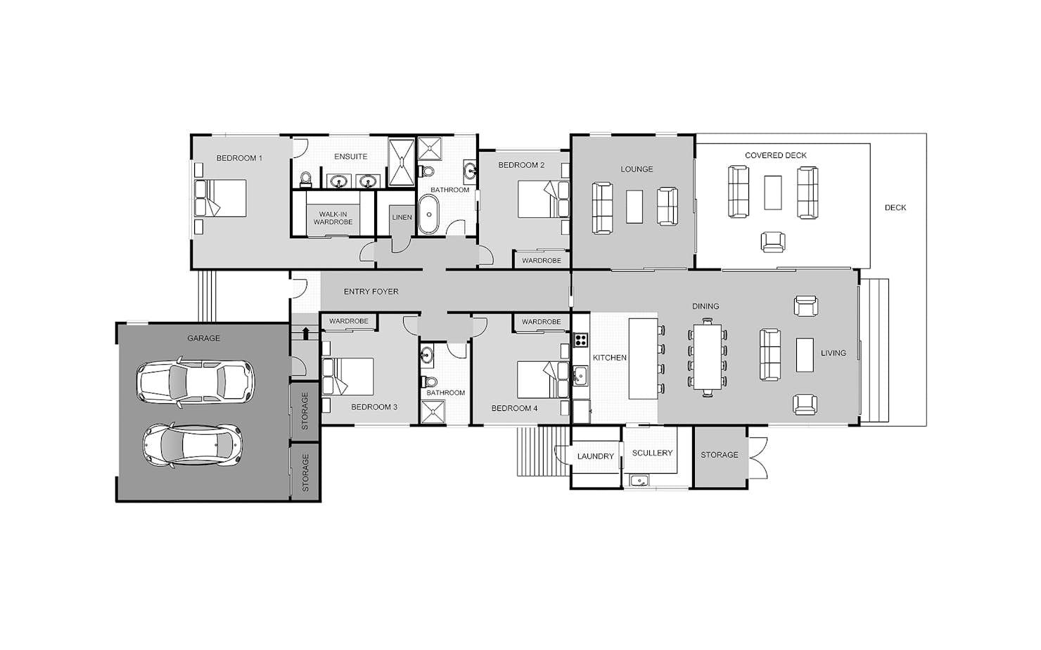
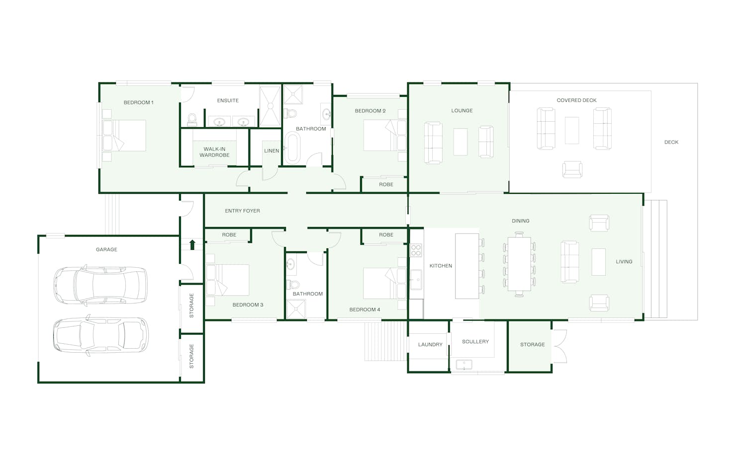
The layout of this impressive four-bedroom home is centred around a tunnel view from the front door right through to the ocean at the other end of the home.
This design is an entertainer’s delight, with spacious indoor and outdoor living areas including a luxurious firepit with sweeping views across the beach.
Our Signature Service Promise
We believe building your home should feel exciting, not stressful. That’s why when you choose Signature Homes, you’ll get:
- The best building guarantees in NZ — so you can build with total peace of mind.
- The best service in the business — we’re with you every step of the way.
- Transparent, accurate pricing — no surprises, just honesty.
- Over 40 years of experience — helping Kiwis create homes they love.
- Accurate build timelines — so you always know what’s ahead.
Greville
House size 273㎡
- Beds4
- Bathrooms3
- Receptions2
- Parking2
Enquire about this plan
Greville Floorplan




