
















The Clipperton: A four-bedroom house plan by Signature Homes
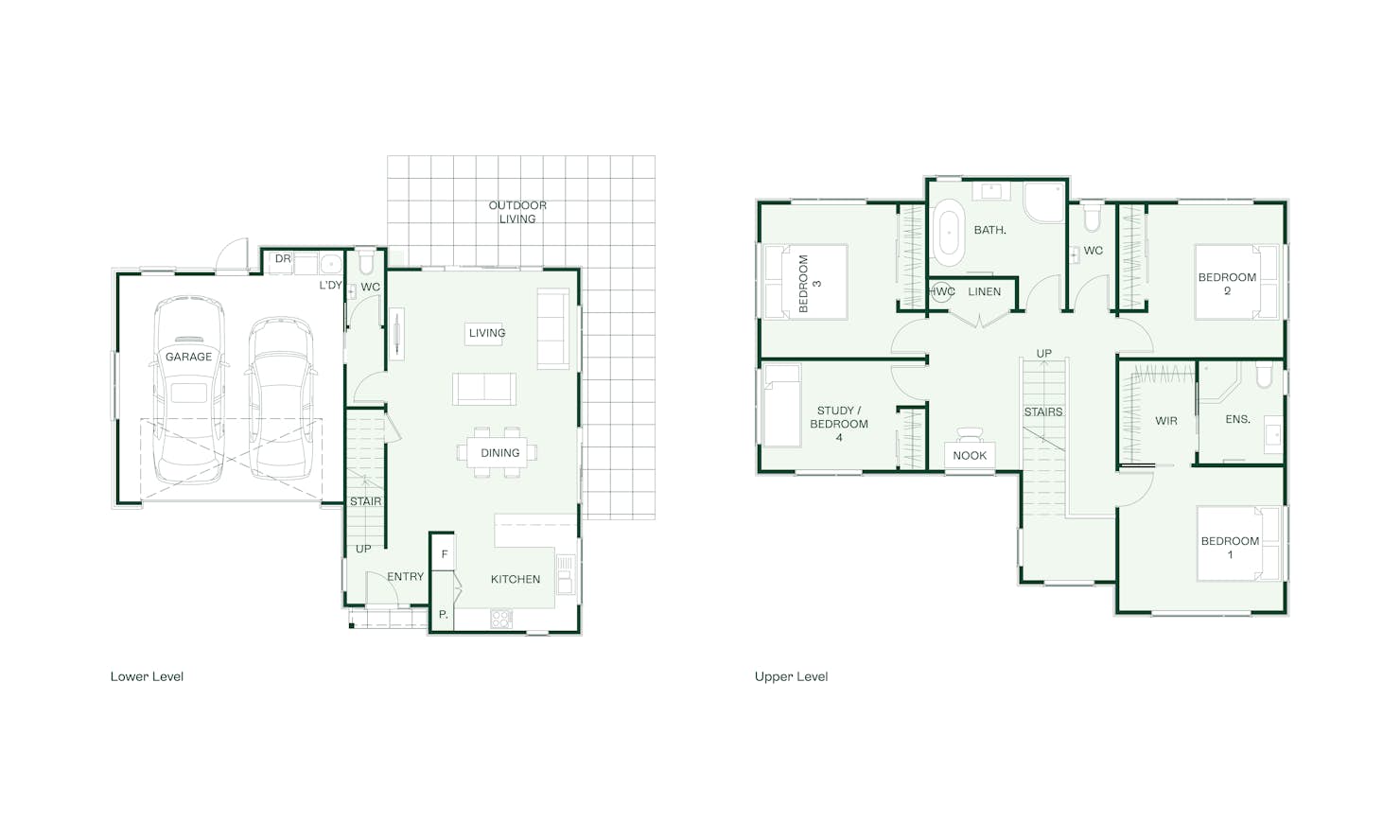
The Clipperton is the perfect blend of style and convenience with four bedrooms and two bathrooms.
Perfect for entertaining, the downstairs features a large kitchen, dining room, and sizeable living space, which opens onto expansive outdoor living areas.
Greeted by a spacious retreat and study nook, the upstairs is home to four double bedrooms including a luxurious master room with walk-in wardrobe and ensuite. Central to the bedrooms is a convenient family bathroom, and linen closet, making family living easy.
Signature Plus is part of Signature Homes' collection of pre-designed house plans. This series presents top-tier specifications for both the home's exterior and interior. Each design boasts well-considered layouts, maximising space and harnessing natural light.
Customise this plan to suit your budget and lifestyle. Book your no-obligation new home workshop today.
Our Signature Service Promise
We believe building your home should feel exciting, not stressful. That’s why when you choose Signature Homes, you’ll get:
- The best building guarantees in NZ — so you can build with total peace of mind.
- The best service in the business — we’re with you every step of the way.
- Transparent, accurate pricing — no surprises, just honesty.
- Over 40 years of experience — helping Kiwis create homes they love.
- Accurate build timelines — so you always know what’s ahead.
Clipperton
House size 201㎡
- Beds4
- Bathrooms2.5
- Receptions1
- Parking2
Enquire about this plan
Clipperton Floorplan





