











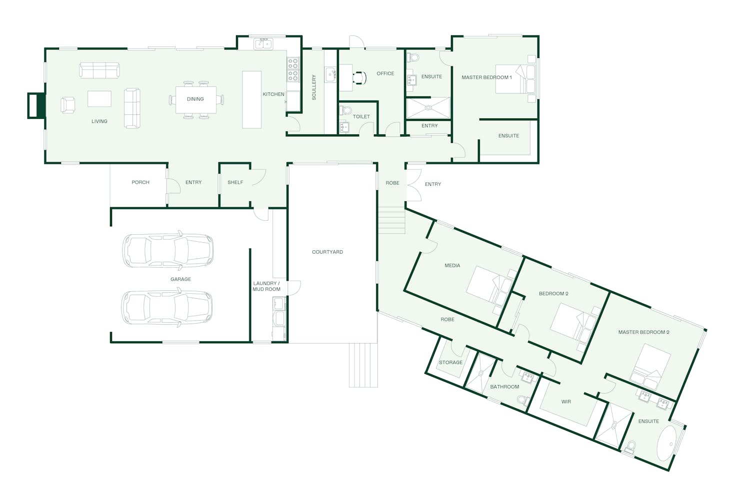
The Brassknocker: A four bedroom Signature Homes custom build
The 312sqm Brassknocker custom build features a modern geometric design and a thoughtfully crafted layout. It features a bedroom wing with three generously sized bedrooms, conveniently located bathrooms.
Other special features include a spacious laundry area, a well-equipped kitchen with a scullery, and a strategically positioned office — perfect for working from home.
Our Signature Service Promise
We believe building your home should feel exciting, not stressful. That’s why when you choose Signature Homes, you’ll get:
- The best building guarantees in NZ — so you can build with total peace of mind.
- The best service in the business — we’re with you every step of the way.
- Transparent, accurate pricing — no surprises, just honesty.
- Over 40 years of experience — helping Kiwis create homes they love.
- Accurate build timelines — so you always know what’s ahead.
Read more
Brassknocker
House size 312㎡
- Beds4
- Bathrooms3.5
- Receptions1
- studies1
- Parking2
Enquire about this plan
Brassknocker Floorplan




