


















The Beachwood: A three-bedroom house plan by Signature Homes
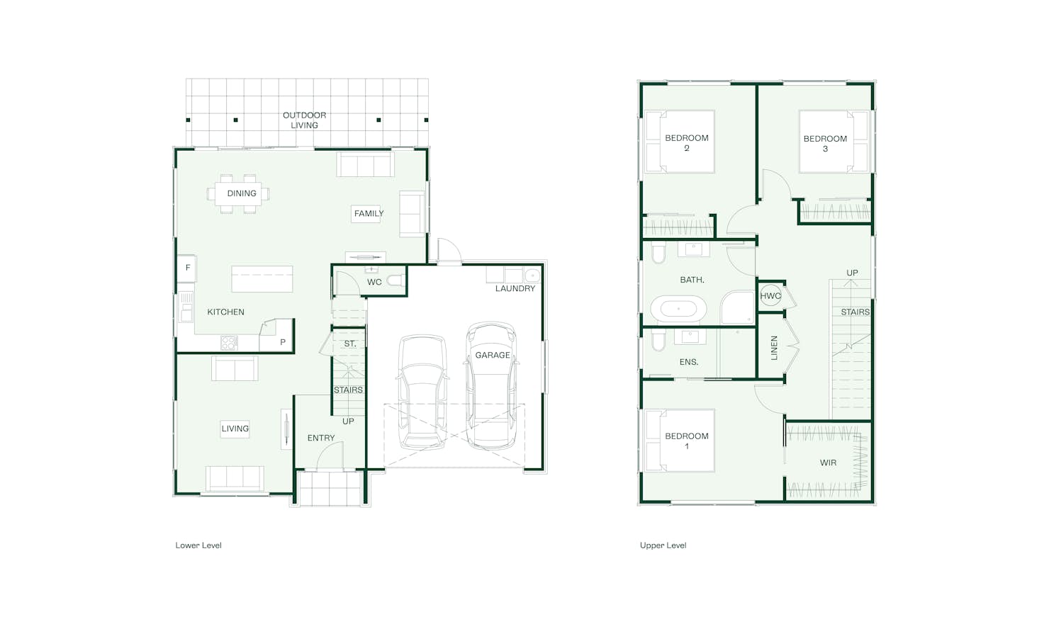
The Beachwood offers an architecturally inspired, two-level oasis with three bedrooms and two bathrooms.
Greeted by a spacious separate lounge area, as you walk through to the rear of the home, you are welcomed by a generous open-plan kitchen, dining, and family areas that seamlessly extend to the outdoors.
Upstairs houses a family bathroom and three double bedrooms, including a master suite with walk-in wardrobe and ensuite with an oversized shower.
Build this home with the added peace of mind of Signature Homes fixed price guarantee.
Signature Plus is part of Signature Homes' collection of pre-designed house plans. This series presents top-tier specifications for both the home's exterior and interior. Each design boasts well-considered layouts, maximising space and harnessing natural light.
Customise this plan to suit your budget and lifestyle. Book your no-obligation new home workshop today.
Our Signature Service Promise
We believe building your home should feel exciting, not stressful. That’s why when you choose Signature Homes, you’ll get:
- The best building guarantees in NZ — so you can build with total peace of mind.
- The best service in the business — we’re with you every step of the way.
- Transparent, accurate pricing — no surprises, just honesty.
- Over 40 years of experience — helping Kiwis create homes they love.
- Accurate build timelines — so you always know what’s ahead.
Beachwood
House size 212㎡
- Beds3
- Bathrooms2.5
- Receptions2
- Parking2
Enquire about this plan
Beachwood Floorplan





