

















Your Dream Home with Uninterrupted Views (Lot 104)
From $823,900
Lot 104 Woolshed Drive, Stoke
Section size 660㎡
House size 145㎡
- Beds3
- Bathrooms2
- Receptions1
- Parking2
Contact
Simon Russell
on
021 944 814
or email srussell@signature.co.nz
Visit Signature Homes Nelson & Tasman
or email srussell@signature.co.nz
Visit Signature Homes Nelson & Tasman
Enquire about this Package
Your Dream Home with Uninterrupted Views (Lot 104)
Lot 104 Woolshed Drive, Stoke
Your Signature package, made easy
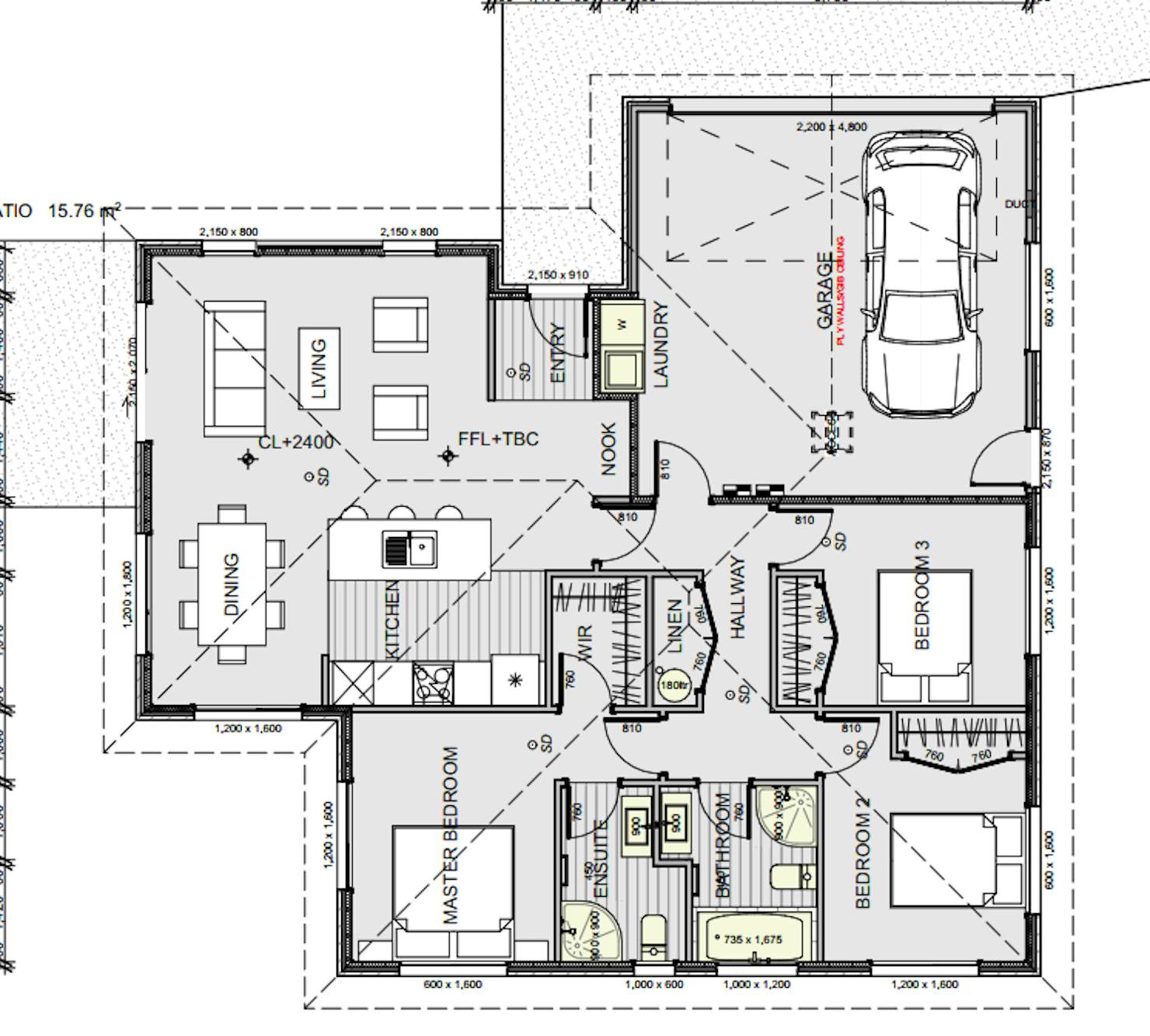
This three-bedroom Hummingbird plan is a compact home with all the modern features. The cleverly designed floor plan allows for generously proportioned bedrooms and living spaces.
Signature features
- Open-plan kitchen
- Indoor-outdoor flow to sunny patio
- Master with walk-in robe and ensuite
Our Signature Service Promise
We believe building your home should feel exciting, not stressful. That’s why when you choose Signature Homes, you’ll get:
- The best building guarantees in NZ - so you can build with total peace of mind.
- The best service in the business - we’re with you every step of the way.
- Fixed pricing - no surprises, just honesty.
- Over 40 years of experience - helping Kiwis create homes they love.
- Accurate build timelines - so you always know what’s ahead.
Read more
Package includes
- Signature Homes market-leading Building Guarantees
- Your choice of internal and external colours
- Fixed Price Guarantee
Floorplans: Your Dream Home with Uninterrupted Views (Lot 104)




Location
Lot 104 Woolshed Drive, Stoke
