

















Swap cramped for countryside in Kiwitahi
From $1,450,000
84 Kiwitahi Road, Kiwitahi, Helensville
Section size 10852㎡
House size 150㎡
- Beds3
- Bathrooms2
- Receptions2
- Parking4
or email halliecameron@signature.co.nz
Visit Signature Homes West & North-West Auckland
Enquire about this Package
Swap cramped for countryside in Kiwitahi
84 Kiwitahi Road, Kiwitahi, Helensville
Imagine trading your tiny Auckland section for a full hectare of your own land in peaceful Kiwitahi. This single-level house and land package gives you exactly that - a thoughtfully designed 150m² home on 1.08 hectares, offering room to spread out, relax, and breathe.
Kiwitahi places you in the heart of a relaxed rural community, where space is abundant, but convenience is close at hand. Local cafés, shops, and schools meet daily needs, while the wider northwest offers plenty to explore. Weekend adventures await - Kaipara Harbour for boating and fishing, Woodhill Forest for family bike rides and bush walks, and vineyards and beaches all within easy reach.
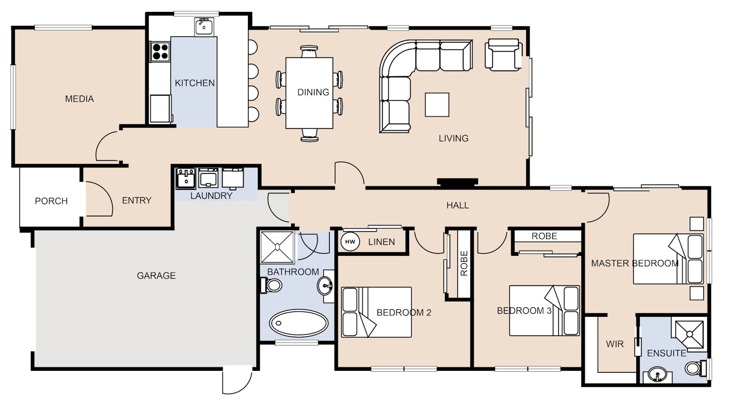
Designed around the way families actually live, the home features a generous open-plan kitchen, dining, and living area that forms the natural hub for everyday life and entertaining. Large windows fill the space with light and frame views across your hectare, creating a calm, connected feeling only possible with real space around you.
A dedicated media room adds flexibility for movie nights, study sessions, or a quiet retreat. Three comfortable double bedrooms include a master suite with walk-in robe and ensuite, while a second bathroom serves the household with ease. Storage is cleverly integrated, with linen cupboards and a practical laundry keeping everything organised.
With a double internal-access garage and a full hectare to explore, you're not just buying a house - you're securing the space and freedom to create the lifestyle you've always imagined.
Signature Features:
- Expansive 1.08 hectare lifestyle section
- Three double bedrooms, including a master with ensuite
- Spacious open-plan kitchen, dining, and living area
- Dedicated media/flex room for study or entertainment
- All-inclusive fixed pricing covering house, land, and site costs
Our Signature Service Promise
We believe building your home should feel exciting, not stressful. That’s why when you choose Signature Homes, you’ll get:
- The best building guarantees in NZ – so you can build with total peace of mind
- The best service in the business – we’re with you every step of the way.
- Fixed pricing – no surprises, just honesty.
- Over 40 years of experience – helping kiwis create homes they love.
- Accurate build timelines – so you always know what’s ahead.
Discuss your vision with our award winning local build team. Contact Signature Homes West & North-West Auckland today and let's turn that vision into your front door key.
NOTE: All our house and land packages are fully customisable and can be tailored to suit your lifestyle and needs. Final home appearance will vary based on your design choices. Price is subject to engineering and final design requirements.
HEL73
Package includes
- The best building guarantees in NZ – so you can build with total peace of mind
- The best service in the business – we’re with you every step of the way.
- Fixed pricing – no surprises, just honesty.
- Over 40 years of experience – helping kiwis create homes they love.
- Accurate build timelines – so you always know what’s ahead.
Floorplans: Swap cramped for countryside in Kiwitahi




Location
84 Kiwitahi Road, Kiwitahi, Helensville
Recommended properties
A Hectare of Happiness in Kiwitahi
- Beds3
- Bathrooms2
- Receptions1
- Parking2
- Suburb:
- From $1,485,000
Live Among the Trees on 10 Acres of Native Bush in Waimauku
- Beds3
- Bathrooms1
- Receptions1
- Parking2
- Suburb:
- From $1,540,000
Wake up to the sound of the country in Waimauku
- Beds4
- Bathrooms2
- Receptions1
- Parking2
- Suburb:
- From $1,400,000