























Brand New Home - Completed & Ready for Move In
From $769,000
34 Tamihana Avenue, Huntly
Section size 600㎡
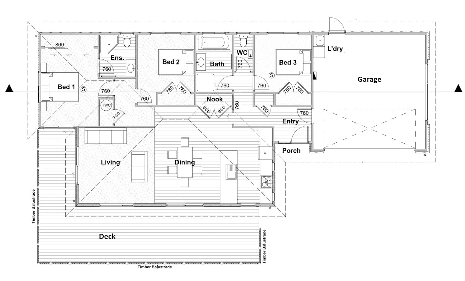
House size 155㎡
- Beds3
- Bathrooms2
- Receptions1
- Parking2
Enquire about this Package
Brand New Home - Completed & Ready for Move In
34 Tamihana Avenue, Huntly
This home is completed and ready for it's new home owners!
Just 30 minutes to Hamilton and 50 minutes to Manukau, this location offers urban connection while still being part of a small-town community.
Close by to numerous walking trails in the beautiful Waikato countryside, a 2-minute walk to Kimihia Primary School and with everything you need in the Huntly township, this opportunity is perfect for first home buyers or for those looking to invest in an up-and-coming area.
This House and Land Package includes:
- 600m2 Freehold section
- 155m2 Home
- Double Garage
- 3 Bedroom
- 2 Bathroom
- Separate WC
- Open plan Kitchen, Dining, Living
- Attic Storage with pull-down stairs
- 15m2 Balcony
- Heatpump
- Clothesline
- Fencing
- Letterbox
- Hydro-seeded Lawns
Signature Homes provides its own exclusive and independently bonded building guarantees, which are the most comprehensive in New Zealand. You'll feel a great sense of assurance when you choose a Signature Homes Build.
Package includes
- Signature Homes market-leading Building Guarantees
- Your choice of internal and external colours
- Fixed Price Guarantee
Floorplans: Brand New Home - Completed & Ready for Move In




Location
34 Tamihana Avenue, Huntly