

















Spacious Family Home in Lockerbie Estate - Lot 102
From $856,810
113 Marsh Avenue (Lot 102), Lockerbie Estate, Morrinsville
Section size 357㎡
House size 170㎡
- Beds4
- Bathrooms2
- Receptions1
- Parking2
Enquire about this Package
Spacious Family Home in Lockerbie Estate - Lot 102
113 Marsh Avenue (Lot 102), Lockerbie Estate, Morrinsville
Take the stress out of Building and secure one of our popular Lockerbie Estate House and Land Packages and benefit from our Fixed Price Guarantee
In the latest stage of Lockerbie Estate, Lot 102 offers a low-maintenance section with spacious family home, on the northern side of Marsh Avenue. The North-West facing back yard will get stacks of afternoon and evening sun for all to enjoy.
The amenities of Lockerbie Estate are second to none, with a brand-new childcare centre, Lockerbie Junction, and Oak Eatery, as well as a medical centre, pharmacy and superette to come. Just 30 minutes drive from Hamilton, with stacks of parkland and open space, this is the convenient and family-friendly location for all to enjoy.
This house & land package is yet to be built, giving you the chance to work with our team on your colour selections and finishings
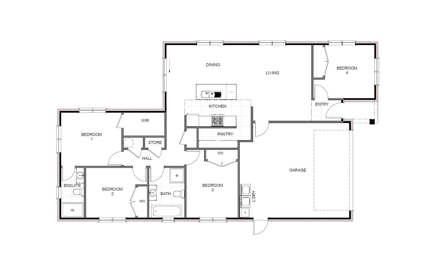
This House & Land Package Includes:
- 357m2 Freehold Section
- 170m2 Home
- 4 Bedroom
- 2 Bathroom
- Open plan Kitchen, Living, Dining
- Clothesline
- Fencing
- Hydro-seeded Lawns
- Letter Box
- Exterior Concrete
- Font Yard Landscaping Allowance
*Images are an artists impression
Package includes
- Signature Homes market-leading Building Guarantees
- Your choice of internal and external colours
- Fixed Price Guarantee
Floorplans: Spacious Family Home in Lockerbie Estate - Lot 102




Location
113 Marsh Avenue (Lot 102), Lockerbie Estate, Morrinsville
