





























Space to stretch, unwind, and breathe in Darfield
From $1,102,000
Lot 52 Darfield Estates
Section size 774㎡
House size 202㎡
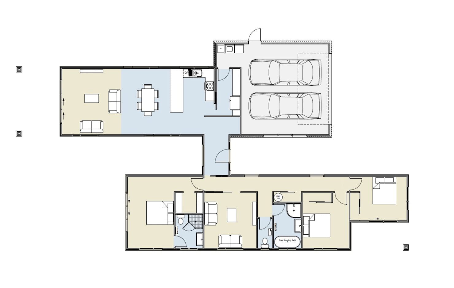
- Beds3
- Bathrooms2.5
- Receptions2
- Parking2
or email debbieryan@signature.co.nz
Visit Signature Homes Christchurch South
Enquire about this Package
Space to stretch, unwind, and breathe in Darfield
Lot 52 Darfield Estates
Your Signature package, made easy
Your chance to secure a modern 202sqm pavilion style home located in Darfield, a great move for families, empty nesters, or those seeking a different pace of living in the country.
Signature features:
- 202m2 of living
- 774m2 section
- Three bedrooms + living on one wing of home
- Living/dining/kitchen located on the other wing
- Walking distance to Darfield town centre
Darfield Estates is only a short walk to the town centre, offering residents the best of both worlds - a peaceful country location with easy access to big city amenities. Southern Alps views, a full range of local village conveniences, unlimited recreational activities within the township and in the nearby rivers, lakes and mountains and a supportive community are what entice people to the area.
Title is expected in mid 2026 - Get in touch now!
Our Signature Service Promise:
We believe building your home should feel exciting, not stressful. That’s why when you choose Signature Homes, you’ll get:
- The best building guarantees in NZ - so you can build with total peace of mind.
- The best service in the business - we’re with you every step of the way.
- Fixed pricing - no surprises, just honesty.
- Over 40 years of experience - helping Kiwis create homes they love.
- Accurate build timelines - so you always know what’s ahead.
Package includes
- Signature Homes market-leading Building Guarantees
- Your choice of internal and external colours
- Fixed Price Guarantee
Floorplans: Space to stretch, unwind, and breathe in Darfield




Location
Lot 52 Darfield Estates
