











Signature Style on Gorgeous Hectare in Kaukapakapa
From $1,250,000
Lot 20, 72 Morgan Rise, Hellyer Heights, Kaukapakapa
Section size 10516㎡
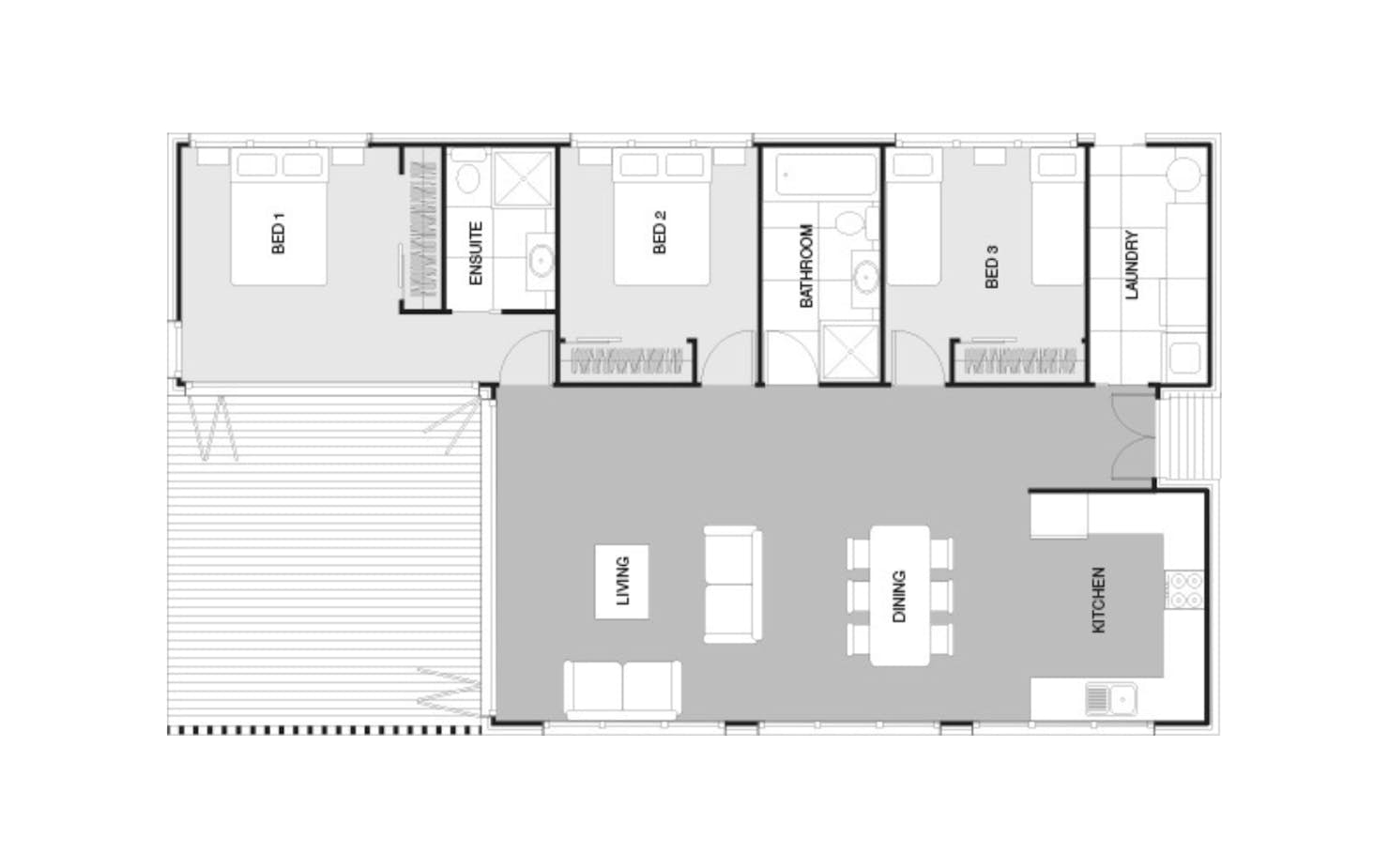
House size 132㎡
- Beds3
- Bathrooms2
- Receptions1
or email deanpritchard@signature.co.nz
Visit Signature Homes West & North-West Auckland
Enquire about this Package
Signature Style on Gorgeous Hectare in Kaukapakapa
Lot 20, 72 Morgan Rise, Hellyer Heights, Kaukapakapa
Peaceful tranquillity awaits in this private lifestyle development in the heart of Kaukapakapa, where over 1 hectare of land meets a quality Signature home.
This cleverly designed 132m² three-bedroom home maximises its 10,516m² setting through thoughtful positioning. Dual sliders — one from the living area and one from the master — open onto a generous deck, creating seamless indoor-outdoor flow and extending your living space across the beautiful rural landscape. Open-plan living connects effortlessly to this outdoor entertaining area, offering the perfect spot to relax or entertain while enjoying rolling countryside views.
Three thoughtfully placed bedrooms provide comfort and privacy, with the master featuring a picturesque rural outlook. There’s also flexibility to add garaging as your needs evolve, making this a location where you can truly create your personal paradise.
Signature Features:
- Over 1 hectare (10,516m²) of private countryside land
- Thoughtfully designed 132m² three-bedroom home
- Dual sliders from living and master opening to shared deck
- Flexibility to add garaging as needs evolve
- All-inclusive fixed pricing covering house, land, and site costs
Our Signature Service Promise:
We believe building your home should feel exciting, not stressful. That’s why when you choose Signature Homes, you’ll get:
- The best building guarantees in NZ – so you can build with total peace of mind
- The best service in the business – we’re with you every step of the way.
- Fixed pricing – no surprises, just honesty.
- Over 40 years of experience – helping kiwis create homes they love.
- Accurate build timelines – so you always know what’s ahead.
Ready to build a truly fabulous lifestyle? Contact Signature Homes West & North-West Auckland today and let’s walk the land and understand the potential for these wonderful blocks.
NOTE: All our house and land packages are fully customisable and can be tailored to suit your lifestyle and needs. Final home appearance will vary based on your design choices. Price is subject to engineering and final design requirements.
KAU10
Package includes
- The best building guarantees in NZ – so you can build with total peace of mind
- The best service in the business – we’re with you every step of the way.
- Fixed pricing – no surprises, just honesty.
- Over 40 years of experience – helping kiwis create homes they love.
- Accurate build timelines – so you always know what’s ahead.
Floorplans: Signature Style on Gorgeous Hectare in Kaukapakapa




Location
Lot 20, 72 Morgan Rise, Hellyer Heights, Kaukapakapa