















Private Section, Impressive Home & Amazing Views - Lot 82
From $988,000
20 Evans Street, (Lot 82) Lockerbie Estate, Morrinsville
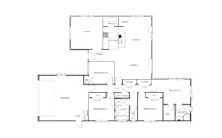
Section size 581㎡
House size 208㎡
- Beds4
- Bathrooms2
- Receptions2
- Parking2
Enquire about this Package
Private Section, Impressive Home & Amazing Views - Lot 82
20 Evans Street, (Lot 82) Lockerbie Estate, Morrinsville
Private Section, Impressive Home & Amazing Views
At Signature Homes Waikato we offer a Fixed Price Guarantee and our expert team will help you every step of the way.
Lot 82 is one of our stand out sections in Lockerbie Estate. Down a private right of way, with amazing rural views to the North East this site boasts a large backyard great for entertaining and for the kids to run around.
Just 30 minutes’ drive from Hamilton, with ample amenities, parkland and open space, Lockerbie Estate is a convenient and family friendly location for all to enjoy.
This house & land package is yet to be built, giving you the chance to work with our team on your colour selections and finishings
This House & Land Package Includes:
- 581m2 Freehold Section
- 208m2 Home
- 4 Bedroom
- 2 Bathroom
- Open plan Kitchen, Living, Dining
- Additional Living Space
- Clothesline
- Fencing
- Hydro seeded Lawns
- Letter Box
- Exterior Concrete
- Font Yard Landscaping Allowance
*Images are an artists impression
Package includes
- Signature Homes market-leading Building Guarantees
- Your choice of internal and external colours
- Fixed Price Guarantee
Floorplans: Private Section, Impressive Home & Amazing Views - Lot 82




Location
20 Evans Street, (Lot 82) Lockerbie Estate, Morrinsville
